$280,000

FOR SALE

920 E 14th

La Junta, Co, 81050

MLS #8420810

Subdivision: -

Building: -

3 Beds

2/- Baths

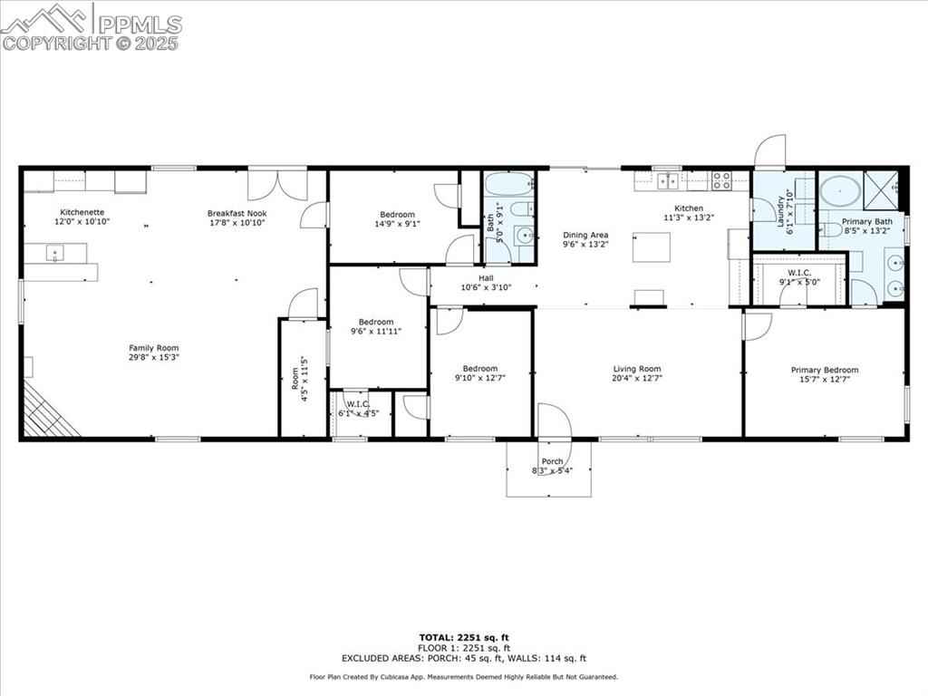
2322 sqft

$ 120.59 /sqft

Property Details

RARE FIND: 2.37 Acres Inside City Limits x2014; Room to Breathe Without Leaving TownxD;xA;If you've been searching for land without sacrificing convenience, this is the one. Nestled on 2.37 acres with full city utilities x2014; water, sewer, gas, and electric x2014; you get the elbow room you've been looking for with none of the rural trade-offs.xD;xA;The property stretches beyond a peaceful stream, giving you genuine space to spread out, garden, keep animals, or simply enjoy the kind of quiet that's almost impossible to find this close to town. And with a massive detached garage and shop wired for 220V, RV shore power, mezzanine storage, and plumbing roughed in for a propane heater, there's serious infrastructure already in place for whatever you're building, storing, or tinkering with.xD;xA;Inside, the home has been thoughtfully cared for and expanded over the years. A 900-square-foot addition gives you a generous space to gather x2014; anchored by an electric fireplace and wet bar x2014; that flows naturally into everyday living. The updated kitchen features stainless appliances, a coffee bar, and enough cabinet space to actually use. Bedrooms are roomy with walk-in closets, the primary suite has a full five-piece bath, and a brand-new AC system means you'll be comfortable year-round.xD;xA;Step out back and you've got a hot tub deck waiting for you at the end of the day x2014; private, quiet, and surrounded by your own land.xD;xA;Properties like this don't come along often. Acreage inside city limits with this kind of setup is genuinely rare x2014; and once it's gone, it's gone.

Property Features

-

Property Type
Single Family
HOA Fee/Monthly
0.00
HOPA
-
Membership Fees
-
Appliances
Dishwasher,Disposal,Dryer,Microwave Oven,Oven,Range,Refrigerator,Washer
Restrictions
-
Furnished
-
Flooring
Vinyl/Linoleum,Luxury Vinyl
No. of Floor
-
Terms Considered
-
Year Built
2004
Cooling
Ceiling Fan(s),Central Air,Wall Unit(s)
Pets Allowed
-
Amenities
-
Interior
5-Pc Bath,French Doors,Great Room,Vaulted Ceilings
Maintenance Fee Includes
-
Governing Bodies
-
Construction
Existing Home
Security
-
Heating
Forced Air,Natural Gas
Garage/Carport
6
Dining Area
-
Exterior
-
Pet Restrictions
No
Parking
-
Application Fee
-
Water Access
-
Pool
No
Gated Community
-
Status
A
Listing Office
Berkshire Hathaway HomeServices Rocky Mountain

Related Properties

Loading related properties, please wait...

The data relating to real estate for sale on this web site comes in part from various real estate boards and MLSs across the United States.

Information is deemed reliable but not guaranteed. Copyright, all rights reserved. The information being provided is for consumers' personal, non-commercial use and may not be used for any purpose other than to identify prospective properties consumers may be interested in purchasing. Use of search facilities of data on the site, other than a consumer looking to purchase real estate, is prohibited.

Listing Courtesy of: Berkshire Hathaway HomeServices Rocky Mountain