$6,000 / Month

FOR RENT

9195 Collins Ave 1104

Surfside, Fl, 33154

MLS #A11692353

Subdivision: Carlisle On The Ocean

Building: 9195 Collins Ave

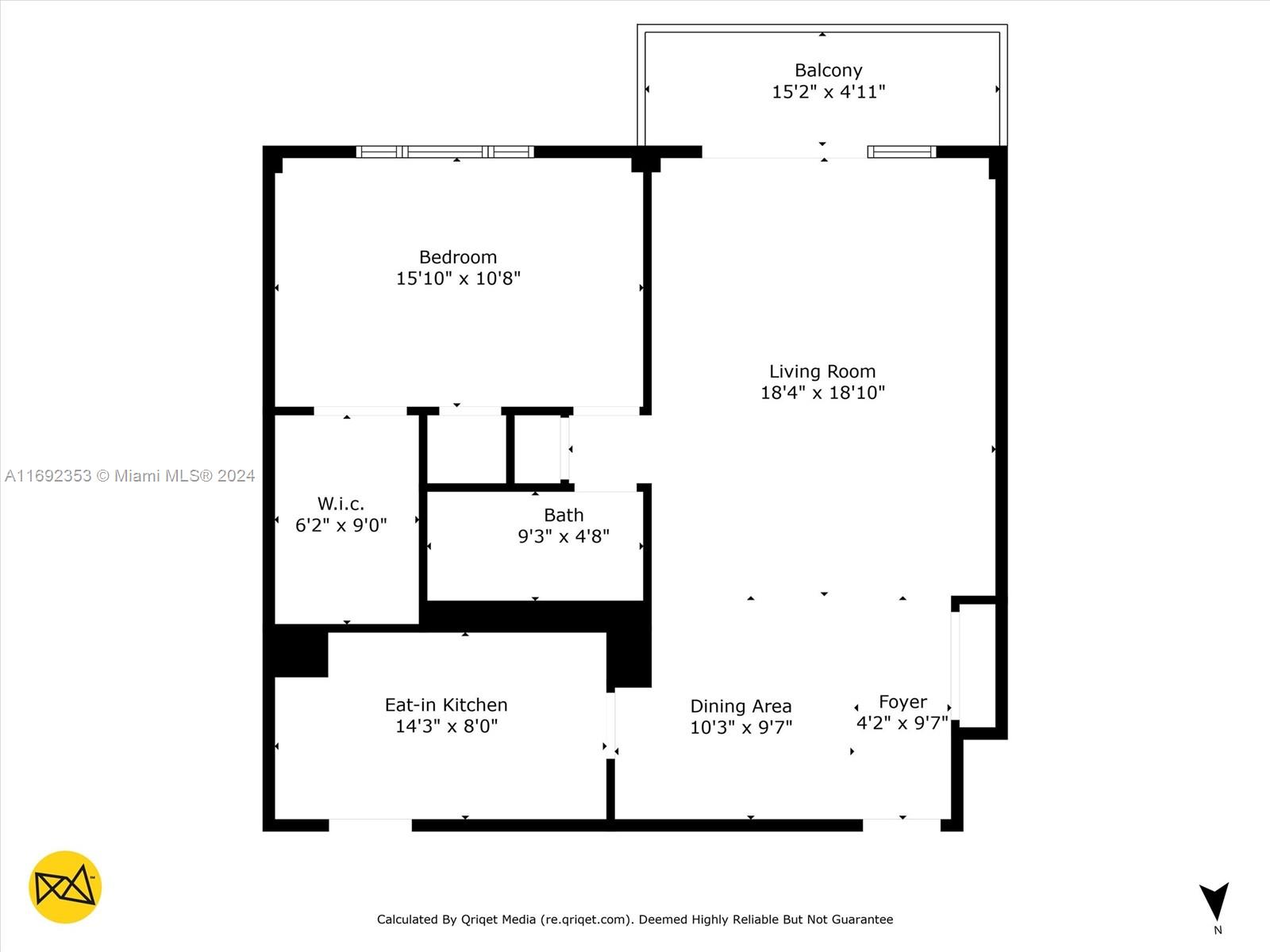
1 Beds

1/- Baths

905 sqft

$ 6.63 /sqft

Property Details

Beautiful ocean view unit in the heart of Surfside on the Beach on a boutique style building with great amenities. Swimming pool, gym, and much more... Near the Bal Harbour Shops, next to Four Season Surf Club, Grand Beach Hotel, Fendi Chateau & much more. Walking distance to great restaurants & shops on Harding Ave and to house of worship. Spacious 1/1 fully furnished, equipped, nicely decorated and to move in ready. With modern features this home has automated blinds, nest ac system, nest smoke detectors, smart toilet and built in walking closets. A must see!

Property Features

-

Property Type
Rental Condos
HOA Fee/Monthly
-
HOPA
No
Membership Fees
-
Appliances
Dryer,Dishwasher,IceMaker,Microwave,Washer
Restrictions
-
Furnished
Furnished
Flooring
CeramicTile,Laminate,Vinyl
No. of Floor
-
Terms Considered
-
Year Built
1965
Cooling
CentralAir
Pets Allowed
No,NoPetRestrictions
Amenities
Elevators,FitnessCenter,HobbyRoom,Laundry,Other,Pool
Interior
BuiltInFeatures,BedroomOnMainLevel,ClosetCabinetry,DiningArea,SeparateFormalDiningRoom,EatInKitchen,LivingDiningRoom,Other,WalkInClosets,Elevator
Maintenance Fee Includes
-
Governing Bodies
-
Construction
Block
Security
GatedWithGuard,KeyCardEntry,LobbySecured,FireSprinklerSystem
Heating
Central
Garage/Carport
1
Dining Area
-
Exterior
Balcony,Patio,SecurityHighImpactDoors
Pet Restrictions
No
Parking
Covered,OneSpace,GarageDoorOpener
Application Fee
-
Water Access
-
Pool
Yes
Gated Community
-
Status
A
Listing Office
The Best Realty Agency LLC

Contact the Agents

Here are the agents you can get in touch with

Yuliya "Julie" Sidorevskaya

juliesrealty.net

Related Properties

Loading related properties, please wait...

The data relating to real estate for sale on this web site comes in part from various real estate boards and MLSs across the United States.

Information is deemed reliable but not guaranteed. Copyright, all rights reserved. The information being provided is for consumers' personal, non-commercial use and may not be used for any purpose other than to identify prospective properties consumers may be interested in purchasing. Use of search facilities of data on the site, other than a consumer looking to purchase real estate, is prohibited.

Listing Courtesy of: The Best Realty Agency LLC