$775,000

FOR SALE

9155 Dome Rock Place

Colorado Springs, Co, 80924

MLS #3972639

Subdivision: Cordera

Building: -

5 Beds

3/1 Baths

3966 sqft

$ 195.41 /sqft

Property Details

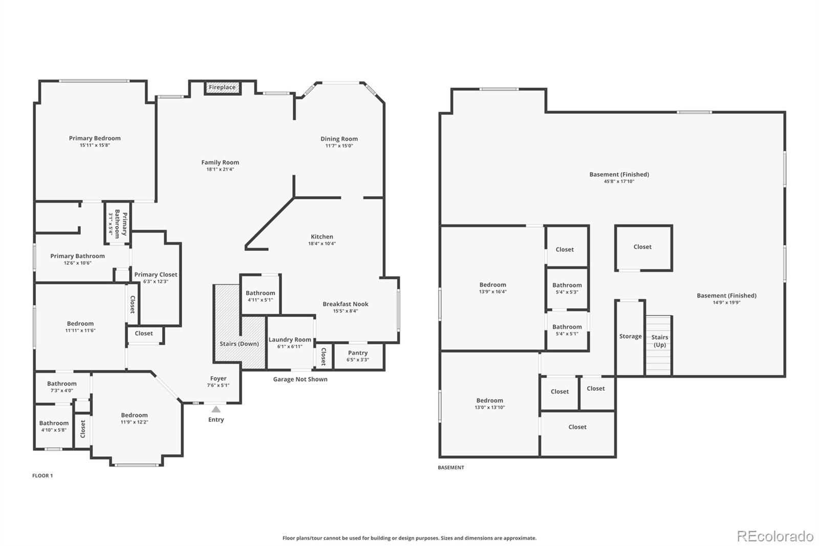
This meticulously maintained ranch-style home in Cordera offers over 4,000 square feet of comfortable, thoughtfully designed living on a quiet cul-de-sac. The curb appeal is instantly inviting, with a covered front porch, manicured lawn, and a charming stone retaining wall welcoming you inside. Beautiful real wood flooring guides you through the main level, where youll find a rare layout featuring three bedrooms on the main floor. Two of the bedrooms share a full Jack-and-Jill bath with a tub/shower combo, and one is currently used as a home office. The spacious living room is warm and bright, highlighted by a gas fireplace with a tile surround and plenty of natural light. The dining area sits between the living room and the expansive kitchen, with a slider that opens to the backyard. The kitchen offers abundant workspace with granite counters, a gas range with double ovens, microwave, dishwasher, large walk-in pantry, and generous cabinet storage. Just off the kitchen, the oversized garage connects through a combined mudroom and laundry area, providing excellent functionality. The main-level primary suite features a serene, spa-like bathroom with a soaking tub, walk-in shower, double vanities, private water closet, and a large walk-in closet. The finished basement is ready for entertaining with a huge recreation area, pool table, wet bar, and an additional family room. Two more bedrooms and a full bath make this space ideal for guests or multi-generational living. The backyard is beautifully done with mature landscaping, a fully fenced lawn, flagstone patio, and a gravel fire-pit areaan inviting retreat in every season. Additional perks include central A/C, window coverings, and abundant storage throughout.

Property Features

-

Property Type
Single Family
HOA Fee/Monthly
-
HOPA
No
Membership Fees
-
Appliances
Dishwasher, Disposal, Double Oven, Humidifier, Microwave, Range, Refrigerator
Restrictions
-
Furnished
Unfurnished
Flooring
Carpet, Wood
No. of Floor
-
Terms Considered
Cash, Conventional, VA Loan
Year Built
2011
Cooling
Central Air
Pets Allowed
-
Amenities
Clubhouse, Fitness Center, Park, Playground, Pool, Trail(s)
Interior
Breakfast Bar, Built-in Features, Ceiling Fan(s), Eat-in Kitchen, Five Piece Bath, Granite Counters, High Speed Internet, Jack & Jill Bathroom, Kitchen Island, Pantry, Primary Suite, Vaulted Ceiling(s), Walk-In Closet(s), Wet Bar
Maintenance Fee Includes
-
Governing Bodies
-
Construction
Frame, Stone, Stucco
Security
Carbon Monoxide Detector(s), Smoke Detector(s), Video Doorbell
Heating
Forced Air, Natural Gas
Garage/Carport
2
Dining Area
-
Exterior
Private Yard, Rain Gutters
Pet Restrictions
No
Parking
Concrete, Oversized
Application Fee
-
Water Access
-
Pool
No
Gated Community
-
Status
A
Listing Office
eXp Realty LLC

Related Properties

Loading related properties, please wait...

The data relating to real estate for sale on this web site comes in part from various real estate boards and MLSs across the United States.

Information is deemed reliable but not guaranteed. Copyright, all rights reserved. The information being provided is for consumers' personal, non-commercial use and may not be used for any purpose other than to identify prospective properties consumers may be interested in purchasing. Use of search facilities of data on the site, other than a consumer looking to purchase real estate, is prohibited.

Listing Courtesy of: eXp Realty LLC