$1,080,000

FOR SALE

745 Platt

Palmer Lake, Co, 80133

MLS #7725607

Subdivision: -

Building: -

5 Beds

3/1 Baths

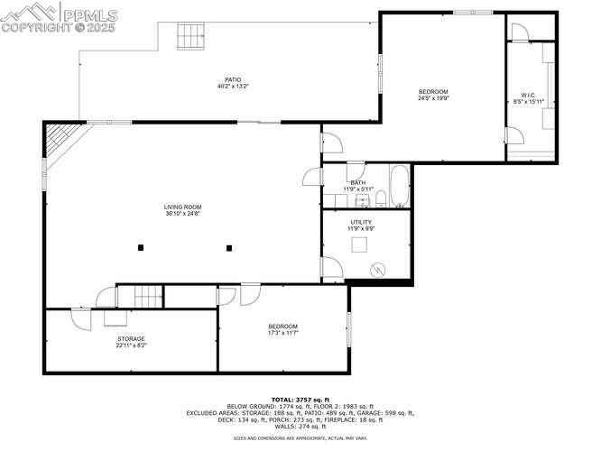
4156 sqft

$ 259.87 /sqft

Property Details

Experience the Best of Colorado Living in Palmer Lake! Nestled on a serene cul-de-sac, this one-owner home offers unparalleled 360-degree mountain views and the striking beauty of red rock formations on a sprawling, treed one-acre lot. Thoughtfully upgraded, the kitchen is a chefx2019;s dream with sleek quartz countertops, a stylish backsplash, and modern under-cabinet lighting. Main-level living includes a spacious primary suite with a 5-piece bath and jetted tub, plus two additional bedrooms & a versatile office or library space, perfect for working from home. Two cozy family rooms, both with gas fireplaces, provide inviting spots to gather, while the upper deck offers a unique vantage point to admire the iconic Palmer Lake Star. Outdoor living is just as enticing, with a wraparound porch, a large back deck, & a hot-tub-ready patio ideal for relaxation & entertaining. The walkout basement is bathed in natural light, pre-wired for surround sound, & offers two more bedrooms, including a second primary suite with a generous walk-in closet. Storage is abundant, with an oversized three-car garage and a fully fenced backyard that feels like your private retreat. The property also features a separate building with its own deck, 100-amp electrical service, insulation, & a pellet stovex2014;an excellent opportunity for a rental or workshop. Perfectly located near dining, shopping, & top-rated District 38 schools, just minutes from Monument, 30 minutes to downtown Colorado Springs, and 35 minutes to the Denver Tech Center. Outdoor enthusiasts will love the easy access to hiking, paddleboarding, horseback riding, & nearby Palmer Lakex2019;s serene waters for fishing & kayaking. Palmer Lake is also known for its charming downtown, vibrant local events like the Yule Log Hunt & annual fireworks, & the scenic Santa Fe Trail for biking and running. This gem beautifully blends small-town charm with modern convenience. Schedule your showing today to experience it for yourself!

Property Features

-

Property Type
Single Family
HOA Fee/Monthly
0.00
HOPA
-
Membership Fees
-
Appliances
Cook Top,Dishwasher,Disposal,Double Oven,Gas in Kitchen,Kitchen Vent Fan
Restrictions
-
Furnished
-
Flooring
Carpet,Other,Wood
No. of Floor
-
Terms Considered
-
Year Built
2000
Cooling
Ceiling Fan(s),Central Air
Pets Allowed
-
Amenities
-
Interior
5-Pc Bath,6-Panel Doors,9Ft + Ceilings,Crown Molding,French Doors
Maintenance Fee Includes
-
Governing Bodies
-
Construction
Existing Home
Security
-
Heating
Forced Air,Natural Gas
Garage/Carport
5
Dining Area
-
Exterior
-
Pet Restrictions
No
Parking
-
Application Fee
-
Water Access
-
Pool
No
Gated Community
-
Status
A
Listing Office
Sherlock Homes

Related Properties

Loading related properties, please wait...

The data relating to real estate for sale on this web site comes in part from various real estate boards and MLSs across the United States.

Information is deemed reliable but not guaranteed. Copyright, all rights reserved. The information being provided is for consumers' personal, non-commercial use and may not be used for any purpose other than to identify prospective properties consumers may be interested in purchasing. Use of search facilities of data on the site, other than a consumer looking to purchase real estate, is prohibited.

Listing Courtesy of: Sherlock Homes