$1,240,000

FOR SALE

654 W Canyon Dr

Leeds, Ut, 84746

MLS #2068565

Subdivision: El Dorado Hills 3

Building: -

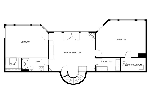
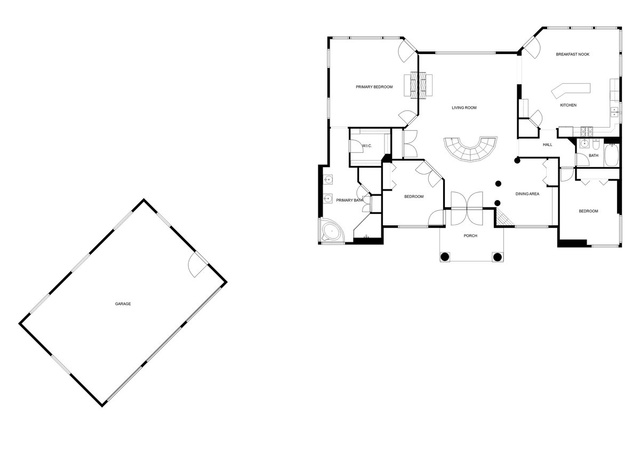
5 Beds

2/- Baths

3774 sqft

$ 328.56 /sqft

Property Details

Nestled on 3.5 acres of prime HORSE PROPERTY, this incredible home offers breathtaking, unobstructed views of Pine Valley and Southern Utah's red mountains. Perched on the edge of a private canyon with its own serene creek, the backyard is a secluded retreat featuring an expansive covered patio and ample privacy, perfect for relaxing or entertaining. Located in the prestigious El Dorado Hills subdivision, this home boasts a gorgeous entry leading to an inviting living space and a balcony that overlooks the panoramic landscape, while large windows throughout flood the interior with natural light. An oversized, detached 3-car garage (approximately 38' wide by 26' deep) provides ample space for storage and vehicles. Just minutes from world-class hiking and mountain biking, this one-of-a-kind property combines luxury, privacy, and incredible potential with mostly flat land ready to be transformed. This is a short sale, all offers will require 3rd party bank approval. Buyer to verify all information, deemed reliable, however buyer to verify all info including utilities, rental restrictions, and HOA information if applicable.

Property Features

-

Property Type
Single Family
HOA Fee/Monthly
-
HOPA
No
Membership Fees
-
Appliances
Ceiling Fan,Dryer,Freezer,Microwave,Refrigerator,Satellite Dish,Washer
Restrictions
-
Furnished
-
Flooring
-
No. of Floor
-
Terms Considered
Cash,Conventional,FHA
Year Built
2004
Cooling
Central Air
Pets Allowed
-
Amenities
-
Interior
Bath: Sep. Tub/Shower,Central Vacuum,Closet: Walk-In,Jetted Tub,Range/Oven: Free Stdng.
Maintenance Fee Includes
-
Governing Bodies
-
Construction
Stucco
Security
-
Heating
Active Solar
Garage/Carport
3
Dining Area
-
Exterior
Lighting,Patio: Open
Pet Restrictions
No
Parking
-
Application Fee
-
Water Access
Culinary
Pool
No
Gated Community
-
Status
A
Listing Office
REMAX Associates

Related Properties

Loading related properties, please wait...

The data relating to real estate for sale on this web site comes in part from various real estate boards and MLSs across the United States.

Information is deemed reliable but not guaranteed. Copyright, all rights reserved. The information being provided is for consumers' personal, non-commercial use and may not be used for any purpose other than to identify prospective properties consumers may be interested in purchasing. Use of search facilities of data on the site, other than a consumer looking to purchase real estate, is prohibited.

Listing Courtesy of: REMAX Associates