$950,000

FOR SALE

5704 Santa Clara Road

Indian Hills, Co, 80454

MLS #1836331

Subdivision: Indian Hills

Building: -

4 Beds

1/- Baths

1727 sqft

$ 550.09 /sqft

Property Details

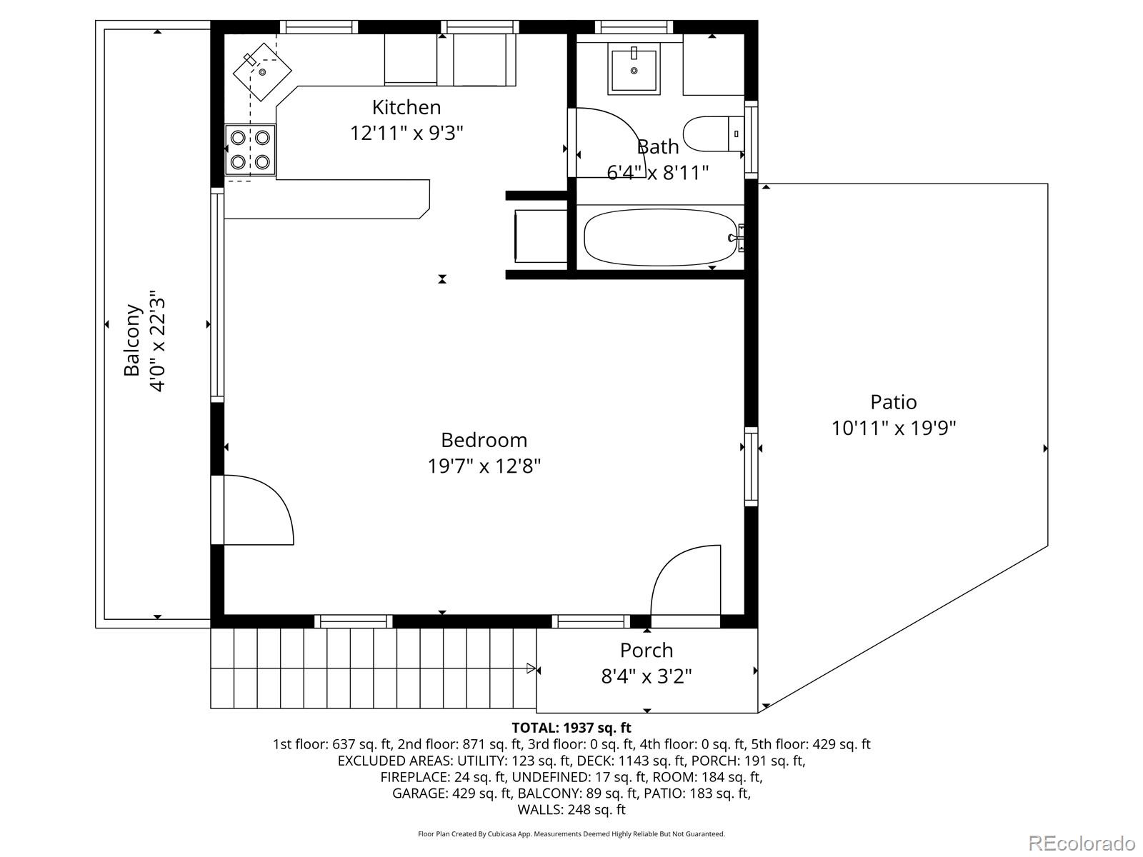
Discover your ideal Colorado foothills getaway at 5704 Santa Clara Road in Indian Hillsa serene mountain retreat set on a quiet dead-end road backing to private acreage for exceptional privacy and peaceful living. Surrounded by towering pines, rock outcroppings, and gorgeous mountain views, this home offers multiple outdoor living spaces perfect for relaxing, entertaining, and enjoying the natural beauty of the foothills.The main home features a warm, inviting layout filled with natural light and classic mountain charm. Large windows capture forest and ridgeline views from nearly every room, enhancing the sense of tranquility. Flexible interior spaces offer comfort for everyday living while accommodating guests, hobbies, or remote work. Home is 4 bedroom & 2 bathroom and approximately 1,727 sq ft.A standout feature of this property is the fully furnished 483 sq ft ADU located above the detached garagea highly desirable bonus space with endless possibilities. Use it as an income-producing rental, private guest suite, live/work studio, or a spacious game room. This versatile addition enhances both the functionality and earnings potential of the home.Outside, the property shines with multiple outdoor living areas, perfect for morning coffee, evening gatherings, or quiet retreat time. The setting provides the best of Indian Hills livingprivacy, nature, and conveniencewith quick access to US-285, Conifer, Evergreen, and endless recreation including hiking, biking, and open space exploration.Whether you're seeking a full-time residence, investment opportunity, or weekend escape, 5704 Santa Clara Road delivers unmatched value and the true Colorado mountain lifestyle. Homes in this private pocket of Indian Hills rarely come availableschedule your showing today.

Property Features

-

Property Type
Single Family
HOA Fee/Monthly
-
HOPA
No
Membership Fees
-
Appliances
Dishwasher, Disposal, Dryer, Range, Refrigerator, Self Cleaning Oven, Washer, Water Softener, Wine Cooler
Restrictions
-
Furnished
-
Flooring
-
No. of Floor
-
Terms Considered
Cash, Conventional, FHA, VA Loan
Year Built
1991
Cooling
None
Pets Allowed
-
Amenities
-
Interior
Eat-in Kitchen, Entrance Foyer, High Speed Internet, Quartz Counters, Smoke Free
Maintenance Fee Includes
-
Governing Bodies
-
Construction
Wood Siding
Security
-
Heating
Forced Air
Garage/Carport
2
Dining Area
-
Exterior
Balcony, Gas Grill, Private Yard, Spa/Hot Tub
Pet Restrictions
No
Parking
Asphalt
Application Fee
-
Water Access
-
Pool
No
Gated Community
-
Status
A
Listing Office
Spirit Bear Realty

Related Properties

Loading related properties, please wait...

The data relating to real estate for sale on this web site comes in part from various real estate boards and MLSs across the United States.

Information is deemed reliable but not guaranteed. Copyright, all rights reserved. The information being provided is for consumers' personal, non-commercial use and may not be used for any purpose other than to identify prospective properties consumers may be interested in purchasing. Use of search facilities of data on the site, other than a consumer looking to purchase real estate, is prohibited.

Listing Courtesy of: Spirit Bear Realty