$3,395,000

FOR SALE

5500 NE 31st Avenue, Fort Lauderdale, FL 33308

Fort Lauderdale, Fl, 33308

MLS #F10483778

Subdivision: The Landings

Building: -

5 Beds

5/- Baths

4180 sqft

$ 812.20 /sqft

Property Details

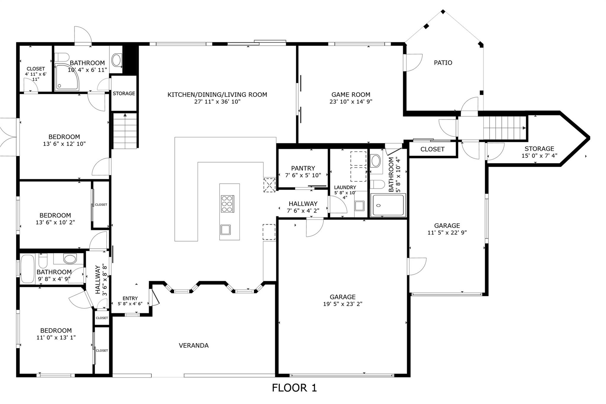
RENOVATED HOME IN 2017 | 30 FT DEEPWATER WITH 25 FT DOCK PILES INTO THE CANAL FITTING A 30 FT BOAT |STANDING SEAM METAL ROOF | LARGE CORNER LOT IS APPROX 0.3 ACRES ON A QUIET STREET |3-CAR GARAGE |3 BEDROOMS ON LOWER LEVEL |2 BEDROOMS ON UPPER LEVEL INCLUDES A GUEST QUARTERS WITH FULL KITCHEN & PRIVATE ENTRANCE |MARBLE FLOORS THROUGHOUT | IMPACT GLASS | OUTDOOR SUMMER KITCHEN | OVERSIZED KITCHEN & COUNTER AREA WITH ISLAND FOR LARGE GATHERINGS WITH LARGE WINECOOLER & INDUCTION COOKTOP & TWO SINKS | UPSTAIRS PRIMARY BEDROOM SUITE VIEWS WATER WITH PRIVATE STAIRCASE | ATTACHED ARE FLOOR PLANS & SURVEY | SEWALL & INSPECTION REPORTS AVAILABLE |LOCATED ON 175 FT WIDE TURNING BASIN WITH QUIET WATER VIEWS |

Property Features

-

Property Type
Single Family
HOA Fee/Monthly
-
HOPA
No
Membership Fees
-
Appliances
Dryer,Dishwasher,ElectricRange,Disposal,GasRange,Microwave,Oven,Refrigerator,WaterSoftener,WaterHeater,WaterPurifier,Washer
Restrictions
-
Furnished
Unfurnished
Flooring
Marble,Wood
No. of Floor
-
Terms Considered
Cash,Conventional
Year Built
2017
Cooling
CentralAir,Electric
Pets Allowed
NoPetRestrictions,Yes
Amenities
Boating
Interior
BreakfastBar,BuiltInFeatures,ClosetCabinetry,DualSinks,JettedTub,LivingDiningRoom,MainLevelPrimary,MultiplePrimarySuites,SplitBedrooms,UpperLevelPrimary,WalkInClosets
Maintenance Fee Includes
-
Governing Bodies
-
Construction
Block
Security
-
Heating
Central,Electric
Garage/Carport
3
Dining Area
-
Exterior
Balcony,Barbecue,OutdoorLivingArea
Pet Restrictions
No
Parking
Attached,CircularDriveway,Driveway,Garage,GarageDoorOpener
Application Fee
-
Water Access
-
Pool
Yes
Gated Community
Privacy
Status
A
Listing Office
Florida Luxurious Properties

Related Properties

Loading related properties, please wait...

The data relating to real estate for sale on this web site comes in part from various real estate boards and MLSs across the United States.

Information is deemed reliable but not guaranteed. Copyright, all rights reserved. The information being provided is for consumers' personal, non-commercial use and may not be used for any purpose other than to identify prospective properties consumers may be interested in purchasing. Use of search facilities of data on the site, other than a consumer looking to purchase real estate, is prohibited.

Listing Courtesy of: Florida Luxurious Properties