$740,000

FOR SALE

54185 232nd Avenue

West Concord, Mn, 55985

MLS #6742047

Subdivision: -

Building: -

5 Beds

4/- Baths

3458 sqft

$ 214.00 /sqft

Property Details

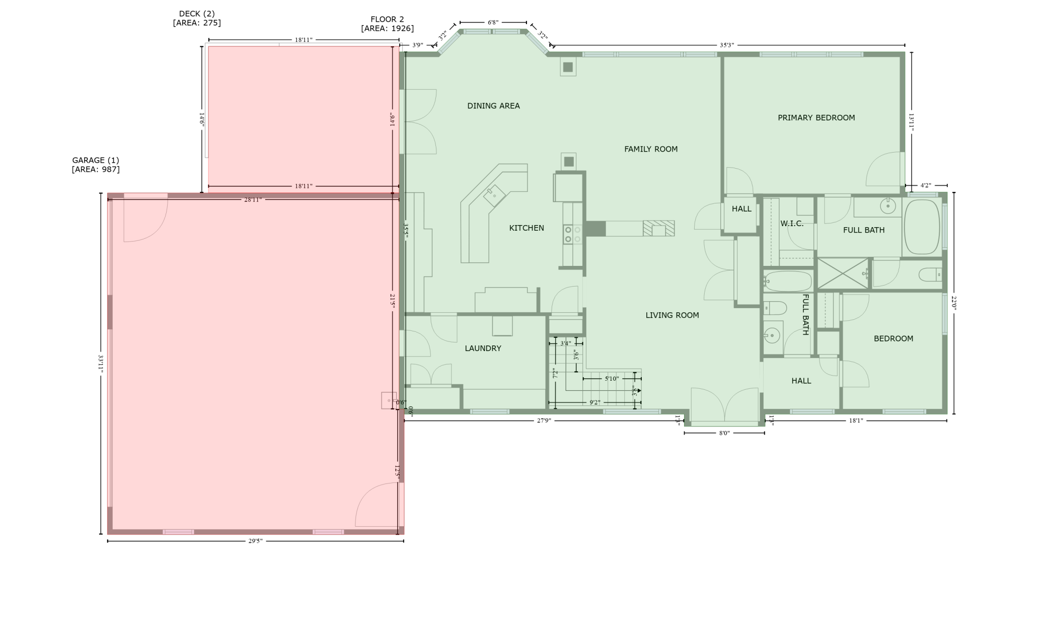
Experience country living at its finest in this stunning 5-bedroom, 4-bath walkout ranch set on over 4 peaceful acres with a private pond and breathtaking views. This home offers true main-floor living with solid hardwood floors, a spacious open layout, and a dedicated laundry/mudroom just off the garage. The private primary suite features a walk-in tile shower, soaking tub, and generous closet space for your retreat-style comfort. Enjoy in-floor heat with 4-zone controls throughout for year-round efficiency and comfort. The oversized attached garage includes a prestressed garage below, perfect for extra storage, a workshop, or your hobby space. Step outside to a massive deck and patio ideal for entertaining or soaking in the scenery. Whether youre hosting gatherings or enjoying a quiet evening by the pond, this property offers the perfect blend of space, functionality, and tranquility.

Property Features

-

Property Type
Single Family
HOA Fee/Monthly
-
HOPA
-
Membership Fees
-
Appliances
Air-To-Air Exchanger, Central Vacuum, Dishwasher, Dryer, Humidifier, Gas Water Heater, Microwave, Range, Refrigerator, Stainless Steel Appliances, Washer, Water Softener Owned
Restrictions
-
Furnished
-
Flooring
-
No. of Floor
-
Terms Considered
-
Year Built
2004
Cooling
Central Air
Pets Allowed
-
Amenities
-
Interior
-
Maintenance Fee Includes
-
Governing Bodies
-
Construction
Brick, Concrete, Frame, Steel Siding
Security
-
Heating
Boiler, Forced Air, Fireplace(s)
Garage/Carport
6
Dining Area
-
Exterior
-
Pet Restrictions
No
Parking
Attached Garage, Gravel, Finished Garage, Garage Door Opener, Insulated Garage, Multiple Garages, Underground
Application Fee
-
Water Access
-
Pool
Yes
Gated Community
-
Status
A
Listing Office
Edina Realty Inc

Related Properties

Loading related properties, please wait...

The data relating to real estate for sale on this web site comes in part from various real estate boards and MLSs across the United States.

Information is deemed reliable but not guaranteed. Copyright, all rights reserved. The information being provided is for consumers' personal, non-commercial use and may not be used for any purpose other than to identify prospective properties consumers may be interested in purchasing. Use of search facilities of data on the site, other than a consumer looking to purchase real estate, is prohibited.

Listing Courtesy of: Edina Realty Inc