$4,600,000

FOR SALE

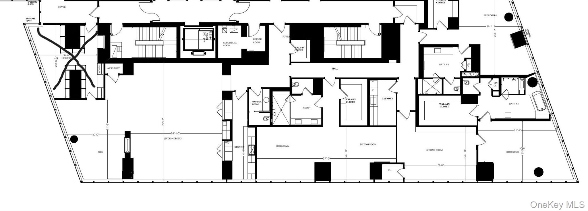
5 Renaissance Square # PH41G

White Plains, Ny, 10601

MLS #881239

Subdivision: Ritz Carlton Residences

Building: 5 Renaissance Square

3 Beds

3/1 Baths

5005 sqft

$ 919.08 /sqft

Property Details

The Ritz-Carlton Residences Westchester in White Plains, New York. PH41G features three spacious bedrooms, three full baths, and one half bath. This stunning 41st-floor residence spans just over 5,000 square feet and treats you to panoramic views that seem endless. Every corner is entirely custom, sparing no budget and showcasing the highest design and construction quality, adorned with exquisite, imported marble and finishes. The attention to detail is genuinely something to be admired and is a rare find! Additionally, residents enjoy access to an array of amenities, including a fully attended lobby, a new resident lounge, a new media room, a new conference room, two outdoor terraces, two fitness centers, an indoor pool, spa, and salon. Moreover, you can enjoy the convenience of having top-rated restaurants and great shopping in downtown White Plains at your doorstep. See why The Ritz-Carlton Residences is the ultimate destination for luxury living just north of New York City.

Property Features

-

Property Type
Condo/Co-Op/Villa/Townhouse
HOA Fee/Monthly
-
HOPA
No
Membership Fees
-
Appliances
Convection Oven, Dishwasher, Disposal, Dryer, Electric Cooktop, Electric Oven, Refrigerator, Stainless Steel Appliance(s), Washer
Restrictions
-
Furnished
-
Flooring
-
No. of Floor
-
Terms Considered
-
Year Built
2008
Cooling
Central Air
Pets Allowed
Size Limit
Amenities
-
Interior
Entrance Foyer, Galley Type Kitchen, High Ceilings, Storage, Walk-In Closet(s)
Maintenance Fee Includes
-
Governing Bodies
-
Construction
Other
Security
-
Heating
Hydro Air
Garage/Carport
1
Dining Area
-
Exterior
-
Pet Restrictions
No
Parking
-
Application Fee
-
Water Access
-
Pool
No
Gated Community
-
Status
A
Listing Office
Christies Int Real Estate

Related Properties

Loading related properties, please wait...

The data relating to real estate for sale on this web site comes in part from various real estate boards and MLSs across the United States.

Information is deemed reliable but not guaranteed. Copyright, all rights reserved. The information being provided is for consumers' personal, non-commercial use and may not be used for any purpose other than to identify prospective properties consumers may be interested in purchasing. Use of search facilities of data on the site, other than a consumer looking to purchase real estate, is prohibited.

Listing Courtesy of: Christies Int Real Estate