$379,000

FOR SALE

5 Pratt Street

Haverstraw, Ny, 10927

MLS #954074

Subdivision: -

Building: -

3 Beds

1/- Baths

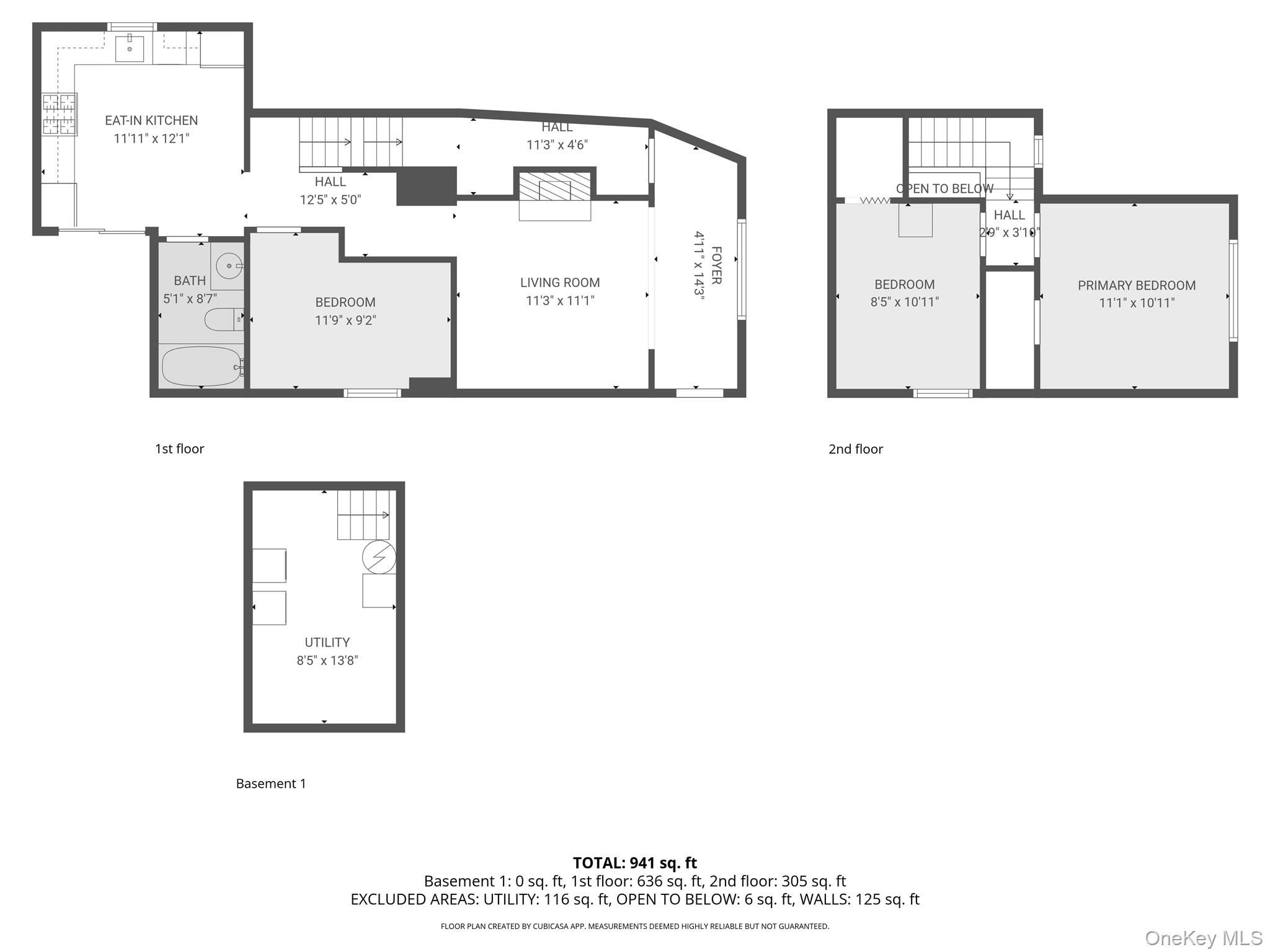
1020 sqft

$ 371.57 /sqft

Property Details

Prime investment opportunity in the heart of Haverstraw, Rockland County! This well-laid-out home welcomes you into a foyer opening to a spacious living room, creating an inviting first impression. Down the hallway, a generously sized eat-in kitchen features a sliding door to the patioideal for added value and future entertaining. The main level also offers a full bathroom and a large bedroom, providing flexible living or rental options. Upstairs, youll find a beautifully sized primary bedroom plus an additional bright and spacious bedroom, both filled with natural light. An unfinished basement with interior access presents excellent upside potential for storage or expansion. Low taxes enhance cash-flow potential. Conveniently located near public transportation, schools, and shoppingthis is a strong value-add opportunity investors

Property Features

-

Property Type
Single Family
HOA Fee/Monthly
-
HOPA
No
Membership Fees
-
Appliances
None
Restrictions
-
Furnished
-
Flooring
Hardwood
No. of Floor
-
Terms Considered
-
Year Built
1890
Cooling
None
Pets Allowed
-
Amenities
-
Interior
First Floor Bedroom, First Floor Full Bath, Eat-in Kitchen
Maintenance Fee Includes
-
Governing Bodies
-
Construction
Frame, Shingle Siding
Security
-
Heating
Forced Air, Natural Gas
Garage/Carport
-
Dining Area
-
Exterior
-
Pet Restrictions
No
Parking
None
Application Fee
-
Water Access
-
Pool
No
Gated Community
-
Status
A
Listing Office
Keller Williams Valley Realty

Related Properties

Loading related properties, please wait...

The data relating to real estate for sale on this web site comes in part from various real estate boards and MLSs across the United States.

Information is deemed reliable but not guaranteed. Copyright, all rights reserved. The information being provided is for consumers' personal, non-commercial use and may not be used for any purpose other than to identify prospective properties consumers may be interested in purchasing. Use of search facilities of data on the site, other than a consumer looking to purchase real estate, is prohibited.

Listing Courtesy of: Keller Williams Valley Realty