$5,000 / Month

FOR RENT

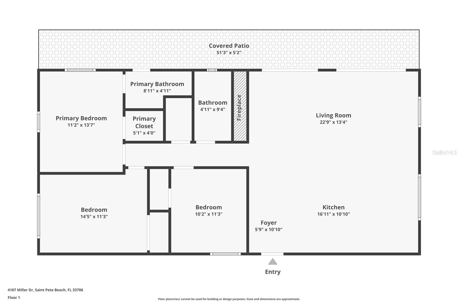
4107 Miller Dr

St Pete Beach, Fl, 33706

MLS #TB8477287

Subdivision: Belle Vista Point 2nd Add

Building: -

3 Beds

2/- Baths

1352 sqft

$ 3.70 /sqft

Property Details

Resort-style living at its finest in the heart of St. Pete Beach. This beautifully remodeled 3-bedroom, 2-bath waterfront home with a 2-car garage, pool, and private dock offers the ultimate coastal lifestylewhere every day feels like a vacation. Yearly/Unfurnished Rental. Small pet ok with $350NR pet fee.The open-concept layout seamlessly connects the living, dining, and kitchen spaces, creating a bright and welcoming environment ideal for both everyday living and entertaining. Walls of sliders flood the home with natural light and open directly to the pool and Intracoastal Waterway, blending indoor and outdoor living effortlessly.The chefs kitchen is a showstopper, featuring brand-new appliances, gleaming granite countertops, and a large center islandperfect for gatherings, casual meals, or simply enjoying the view while you cook.Porcelain tile flooring flows throughout the home, complemented by recessed lighting, ceiling fans, and a stunning electric fireplace. Step outside to your fenced waterfront yard and embrace the boating lifestyleideal for paddle boarding, kayaking, cruising, or unwinding with morning coffee or sunset cocktails by the water.Located just minutes from the sandy beaches and surrounded by shopping, dining, parks, marinas, waterfront restaurants, Corey Avenue events, and endless water activities, this exceptional waterfront retreat delivers luxury coastal living in one of St. Pete Beachs most desirable locations.If you decide to apply for one of our properties:Screening includes credit/background check, income verification of 2.5 to 3 times the monthly rent and rental history verification.APPLICANT CHARGES:Application Fees: $75 for each adult, 18 years of age and older (non-refundable).$25 for each pet application fee for pet verification (non-refundable).Current vaccination records will be required.ESA and service animals are FREE with verified documentation.Lease Initiation Admin Fee: $150.00 after approval and upon signing.Security Deposit: Equal to one months rent.Pet Fee if applicable (non-refundable) $350 for each approved pet.All Rent Solutions residents are enrolled in the Resident Benefits Package (RBP) for $49.95/month which includes liability insurance, credit building to help boost the residents credit score with timely rent payments, HVAC air filter delivery (for applicable properties), our best-in-class resident rewards program, and much more! More details upon application.

Property Features

-

Property Type
Rental Homes
HOA Fee/Monthly
-
HOPA
No
Membership Fees
-
Appliances
Dishwasher, Microwave, Range, Refrigerator
Restrictions
-
Furnished
Unfurnished
Flooring
Tile
No. of Floor
-
Terms Considered
-
Year Built
1960
Cooling
Central Air
Pets Allowed
Cats OK, Dogs OK
Amenities
-
Interior
Ceiling Fans(s), Open Floorplan
Maintenance Fee Includes
-
Governing Bodies
-
Construction
-
Security
-
Heating
Central, Electric
Garage/Carport
2
Dining Area
-
Exterior
-
Pet Restrictions
No
Parking
-
Application Fee
-
Water Access
1
Pool
1
Gated Community
-
Status
A
Listing Office
RENT SOLUTIONS

Related Properties

Loading related properties, please wait...

The data relating to real estate for sale on this web site comes in part from various real estate boards and MLSs across the United States.

Information is deemed reliable but not guaranteed. Copyright, all rights reserved. The information being provided is for consumers' personal, non-commercial use and may not be used for any purpose other than to identify prospective properties consumers may be interested in purchasing. Use of search facilities of data on the site, other than a consumer looking to purchase real estate, is prohibited.

Listing Courtesy of: RENT SOLUTIONS