$699,000

FOR SALE

4 Central Avenue E

Caldwell, Nj, 07006

MLS #25038726

Subdivision: -

Building: -

3 Beds

2/2 Baths

- sqft

$ - /sqft

Property Details

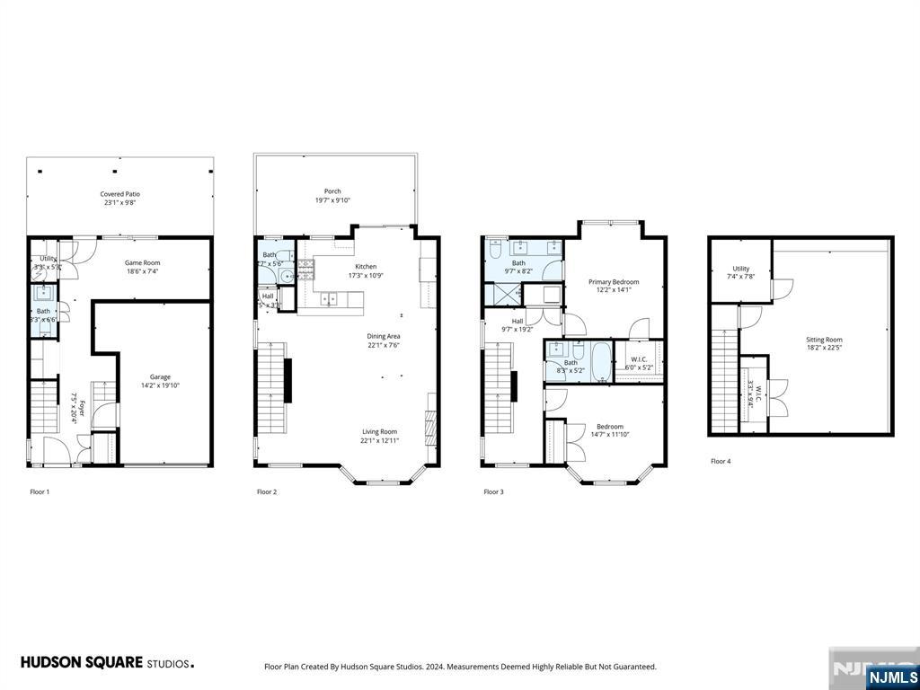
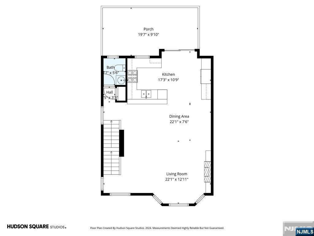
Welcome to this stunning, meticulously maintained 4-story brownstone townhouse located in the heart of Caldwell, NJ. Offering modern luxury combined with timeless character, this home boasts spacious living with 3 bedrooms, and 4 bathrooms. This is a RARE end unit, including extra windows, more natural light, more outdoor space, and most importantly, extra privacy that only this unit provides! Features: Four levels , crown moldings, and a Chef-Inspired Kitchen with two-tone cabinets complete with a stunning blue glass tile backsplash and top-of-the-line stainless steel appliances. This kitchen is a showstopper.Enjoy your morning coffee or unwind in the evening on the private upstairs maintenance free Trex deck, complete with overhead awning. The downstairs patio is perfect for outdoor dining and relaxing in the iNCLUDED luxurious Spa Hot tub!The 3 generously sized bedrooms offer plenty of closet space and natural light. The Kohler bubbler tub in the main bathroom is ideal for a relaxing soak after a long day. This home features air conditioning and an intercom system on every floor, including the attic, ensuring year-round comfort . The central vacuum adds extra convenience, making cleaning a breeze. Located in the desirable section of Caldwell, this home offers easy access to Bloomfield Avenue, shopping, restaurants, parks, and top-rated schools. Whether you're commuting to work or exploring local attractions, this location is both convenient and charming.

Property Features

-

Property Type
Condo/Co-Op/Villa/Townhouse
HOA Fee/Monthly
-
HOPA
-
Membership Fees
-
Appliances
-
Restrictions
-
Furnished
-
Flooring
-
No. of Floor
-
Terms Considered
-
Year Built
2010
Cooling
Central Air,Ductless
Pets Allowed
Pets Ok
Amenities
Jacuzzi
Interior
-
Maintenance Fee Includes
-
Governing Bodies
-
Construction
-
Security
-
Heating
Gas,Hot Air,Multi-Zone
Garage/Carport
1
Dining Area
-
Exterior
-
Pet Restrictions
No
Parking
Attached
Application Fee
-
Water Access
-
Pool
No
Gated Community
-
Status
A
Listing Office
Serhant New Jersey LLC

Related Properties

Loading related properties, please wait...

The data relating to real estate for sale on this web site comes in part from various real estate boards and MLSs across the United States.

Information is deemed reliable but not guaranteed. Copyright, all rights reserved. The information being provided is for consumers' personal, non-commercial use and may not be used for any purpose other than to identify prospective properties consumers may be interested in purchasing. Use of search facilities of data on the site, other than a consumer looking to purchase real estate, is prohibited.

Listing Courtesy of: Serhant New Jersey LLC