$3,200

FOR SALE

385 Passaic Avenue 5

Lodi, Nj, 07644

MLS #25041963

Subdivision: -

Building: -

2 Beds

2/- Baths

- sqft

$ - /sqft

Property Details

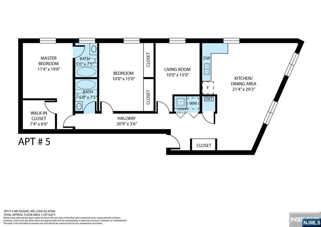
Welcome to Illyria Haus Residences- designed for modern living with flexible layouts that can adjust as your needs evolve.As you enter,youre welcomed by 2 spacious hallway closets that provide immediate and practical storage.The layout flows into a generous open space ideal for liv/dining,with a large quartz island seating up to 5,making the kitchen an inviting centerpiece.A separate flex living room offers the versatility as a 3-rd bed/office or guest space.This room includes a double-door closet.On the other side of the hallway,you'll find a dedicated utility closet and a separate laundry closet.Bed #1 comfortably fits a queen-size bed & features a double-door closet.Nearby,the 1-st full bath offers floor-to-ceiling tile and a modern palette of gold,gray and white.The primary bedroom is private and well-sized,complete with a large walk-in closet and an en-suite full bath featuring a tub;perfect for unwinding and cozy evenings at home.With its adaptable layout,smart storage solutions and elevated finishes, Apt #5 offers a living experience designed to evolve with your lifestyle.The location completes the picture: close to public transportation,convenience stores,grocery and larger retail options,dining, parks and everything needed for a well-connected lifestyle.No pets allowed. Credit/background check,income verification and interview required.Move-in incentive: Sign a lease by December 31st and receive one month free rent.Schedule your appointment today!

Property Features

-

Property Type
Condo/Co-Op/Villa/Townhouse
HOA Fee/Monthly
-
HOPA
-
Membership Fees
-
Appliances
-
Restrictions
-
Furnished
-
Flooring
-
No. of Floor
-
Terms Considered
-
Year Built
-
Cooling
-
Pets Allowed
O/See Rmks,Pets Conditional,Pets Ok
Amenities
24hr Sec
Interior
-
Maintenance Fee Includes
-
Governing Bodies
-
Construction
-
Security
-
Heating
Gas,Hot Air
Garage/Carport
0
Dining Area
-
Exterior
-
Pet Restrictions
No
Parking
None
Application Fee
-
Water Access
-
Pool
No
Gated Community
-
Status
A
Listing Office
Keller Williams Valley Realty

Related Properties

Loading related properties, please wait...

The data relating to real estate for sale on this web site comes in part from various real estate boards and MLSs across the United States.

Information is deemed reliable but not guaranteed. Copyright, all rights reserved. The information being provided is for consumers' personal, non-commercial use and may not be used for any purpose other than to identify prospective properties consumers may be interested in purchasing. Use of search facilities of data on the site, other than a consumer looking to purchase real estate, is prohibited.

Listing Courtesy of: Keller Williams Valley Realty