$337,000

FOR SALE

3599 Caruso Pl

Oviedo, Fl, 32765

MLS #O6321475

Subdivision: Hawthorne Glen Twnhms

Building: -

3 Beds

2/1 Baths

1480 sqft

$ 227.70 /sqft

Property Details

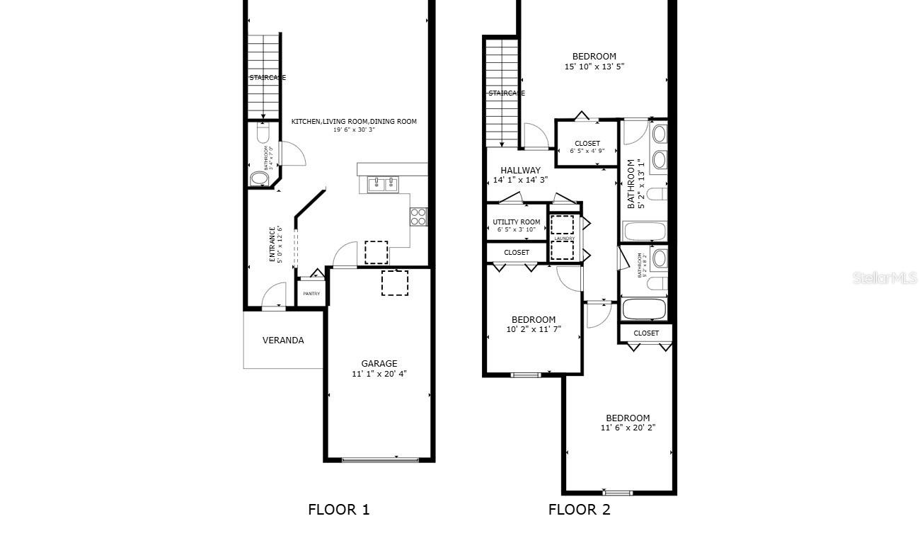
Location, Location, Location! Welcome to the highly sought-after Hawthorne Glen community Located just across the street from the University of Central Florida main campus! The home is perfectly built for families, professionals, or roommates. This beautifully maintained 3-bedroom, 2.5-bath residence offers a harmonious blend of comfort, style, and convenience in the heart of Oviedo. Upon entry, you're greeted by an inviting Open-Concept floor plan featuring elegant Travertine Tile Flooring and serene Nature Views through large sliding glass doors that connect the living and dining spaces. The thoughtfully designed kitchen is the heart of the home, showcasing granite countertops and a convenient workstation perfect for a coffee bar. All three spacious bedrooms are located on the second floor along with a convenient Laundry closetmaking wash day a breeze. The primary suite features a private En-suite Bath and Walk-in Closet, while the two secondary bedrooms are thoughtfully separated by a full shared bathroom. Enjoy the Florida lifestyle on your private back patio or take advantage of the community amenities including a Resort-Style Pool, Playground, and Dog park. Best of all, this is low-maintenance living at its finestyour HOA covers lawn care, building exterior maintenance, including roof and paint (both updated in 2020). A brand-new A/C system adds peace of mind and value. Recent community updates include freshly paved roads, enhancing both curb appeal and functionality. Outdoor enthusiasts will appreciate being less than half a mile from the Econ River Wilderness Trailhead, perfect for hiking, biking, and nature walks. This move-in ready townhome delivers unbeatable value in a prime location, whether you're a First-time buyer, Investor, or looking to live near UCF, Research Park, or Oviedo's Top-rated Schools. Dont miss outschedule your private tour today and make this exceptional home yours!

Property Features

-

Property Type
Condo/Co-Op/Villa/Townhouse
HOA Fee/Monthly
-
HOPA
No
Membership Fees
-
Appliances
Dishwasher, Disposal, Dryer, Microwave, Range, Refrigerator, Washer
Restrictions
-
Furnished
Unfurnished
Flooring
Carpet, Tile
No. of Floor
-
Terms Considered
Cash, Conventional, FHA
Year Built
2005
Cooling
Central Air
Pets Allowed
Yes
Amenities
-
Interior
Kitchen/Family Room Combo, Living Room/Dining Room Combo, Open Floorplan
Maintenance Fee Includes
-
Governing Bodies
-
Construction
Block, Stucco
Security
-
Heating
Central
Garage/Carport
1
Dining Area
-
Exterior
Sliding Doors
Pet Restrictions
No
Parking
Driveway, Garage Door Opener, Ground Level, Guest
Application Fee
-
Water Access
-
Pool
Yes
Gated Community
-
Status
A
Listing Office
FLORIDA REALTY INVESTMENTS

Related Properties

Loading related properties, please wait...

The data relating to real estate for sale on this web site comes in part from various real estate boards and MLSs across the United States.

Information is deemed reliable but not guaranteed. Copyright, all rights reserved. The information being provided is for consumers' personal, non-commercial use and may not be used for any purpose other than to identify prospective properties consumers may be interested in purchasing. Use of search facilities of data on the site, other than a consumer looking to purchase real estate, is prohibited.

Listing Courtesy of: FLORIDA REALTY INVESTMENTS