$342,000

FOR SALE

3258 Hemlock Street

Whiteland, In, 46184

MLS #22086414

Subdivision: Timber Valley

Building: -

4 Beds

2/1 Baths

3604 sqft

$ 94.89 /sqft

Property Details

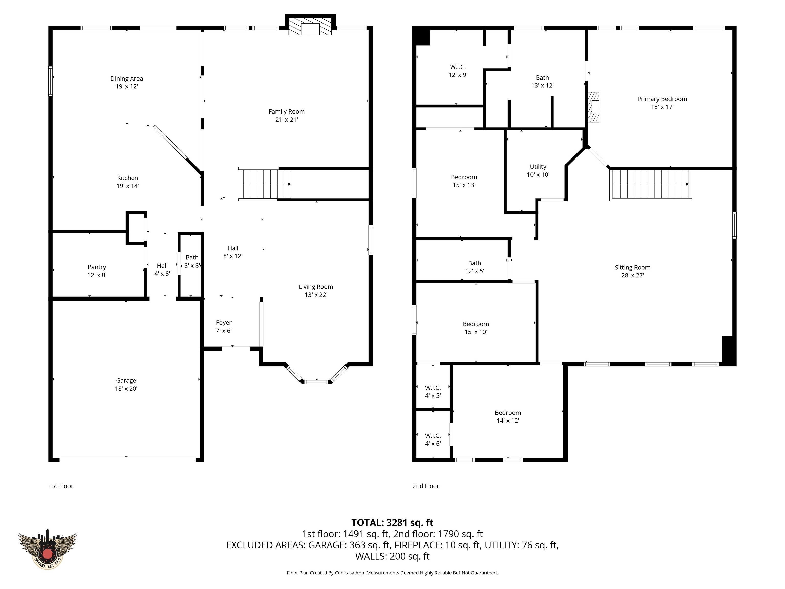
Welcome to this beautiful 4-bedroom, 2.5-bath two-story home designed for comfortable living and effortless entertaining. A charming covered front porch invites you inside, where you'll find a bright and spacious open-concept layout. The main level features a welcoming living room, a cozy family room, and a dining area conveniently located adjacent to the kitchen-perfect for gatherings. The kitchen comes fully equipped with all stainless steel appliances, which stay with the home. Upstairs, you'll find a generously sized loft that provides flexible space for a home office, media room, or play area. The spacious primary suite is a true retreat, complete with a fireplace and a private ensuite bath featuring a tub/shower combination, double sinks, and a walk-in closet. Three additional bedrooms share a full bath, offering comfort and convenience for family or guests. For added ease, the upstairs laundry room makes everyday chores convenient, and the washer and dryer will remain with the home. Step outside to enjoy the open patio overlooking a peaceful pond view-an ideal setting for relaxing evenings. The fenced-in backyard provides added privacy and space for outdoor activities. This home combines thoughtful design, ample living space, and scenic outdoor views-ready for you to move in and make it your own!

Property Features

-

Property Type
Single Family
HOA Fee/Monthly
-
HOPA
-
Membership Fees
-
Appliances
Dishwasher, Dryer, Disposal, Gas Water Heater, MicroHood, Electric Oven, Refrigerator, Washer, Water Heater
Restrictions
-
Furnished
-
Flooring
-
No. of Floor
-
Terms Considered
-
Year Built
2006
Cooling
Central Air
Pets Allowed
-
Amenities
-
Interior
Attic Access, Breakfast Bar, High Ceilings, Entrance Foyer, Paddle Fan, Hi-Speed Internet Availbl, Pantry, Walk-In Closet(s), Wood Work Painted
Maintenance Fee Includes
-
Governing Bodies
-
Construction
Vinyl Siding
Security
Carbon Monoxide Detector(s), Smoke Detector(s)
Heating
Forced Air, Natural Gas
Garage/Carport
2
Dining Area
-
Exterior
-
Pet Restrictions
No
Parking
Attached
Application Fee
-
Water Access
-
Pool
No
Gated Community
-
Status
A
Listing Office
Highgarden Real Estate

Related Properties

Loading related properties, please wait...

The data relating to real estate for sale on this web site comes in part from various real estate boards and MLSs across the United States.

Information is deemed reliable but not guaranteed. Copyright, all rights reserved. The information being provided is for consumers' personal, non-commercial use and may not be used for any purpose other than to identify prospective properties consumers may be interested in purchasing. Use of search facilities of data on the site, other than a consumer looking to purchase real estate, is prohibited.

Listing Courtesy of: Highgarden Real Estate