$3,250 / Month

FOR RENT

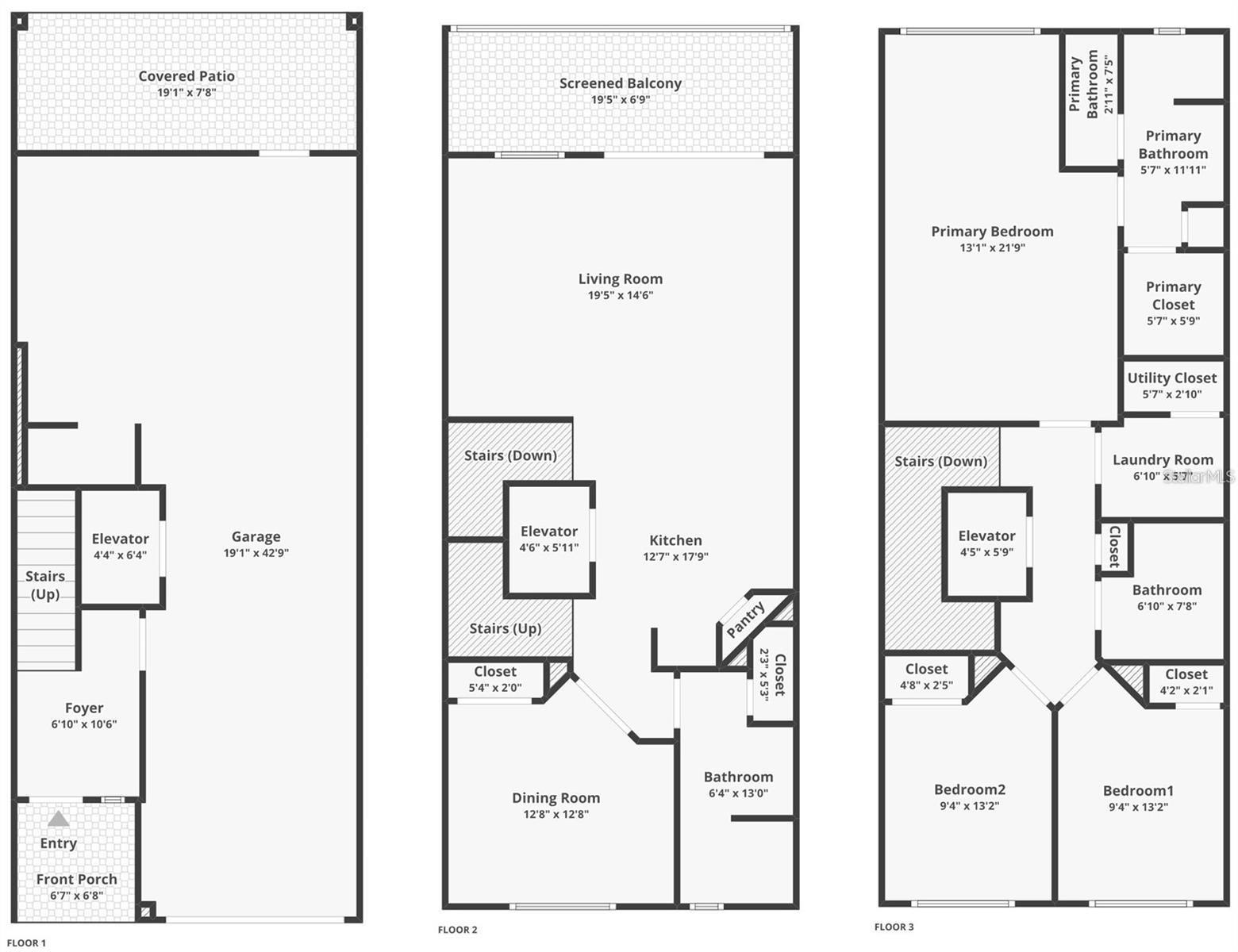
3138 Nautical Pl S

St Petersburg, Fl, 33712

MLS #TB8460233

Subdivision: Cove At Loggerhead Marina

Building: -

4 Beds

3/- Baths

1920 sqft

$ 1.69 /sqft

Property Details

Experience the pinnacle of Florida living in the highly coveted, gated community of Cove at Loggerhead Marina. This stunning 3-story townhome offers 4 bedrooms and 3 full bathrooms, engineered flooring and modern finishes throughout, providing ample space and privacy for families or guests. Skip the stairs and use your private in-unit elevator to navigate all three levels with ease.The heart of the home is a chef-inspired kitchen featuring premium stainless steel appliances, including a high-end refrigerator with a built-in Keurig coffee brewer for the perfect morning start. Relax on one of two expansive porches, including a second-level screened-in balcony perfect for evening breezes.As part of a premier waterfront community, youll enjoy direct access to a full-service marina, a resort-style pool, this home is the ultimate retreat just minutes from Downtown St. Pete and world-class beaches.

Property Features

-

Property Type
Rental Condos
HOA Fee/Monthly
-
HOPA
No
Membership Fees
-
Appliances
Dishwasher, Disposal, Dryer, Electric Water Heater, Ice Maker, Microwave, Range, Refrigerator, Washer, Water Softener
Restrictions
-
Furnished
Unfurnished
Flooring
Carpet, Ceramic Tile, Hardwood, Tile
No. of Floor
-
Terms Considered
-
Year Built
2016
Cooling
Central Air, Zoned, Attic Fan
Pets Allowed
Dogs OK, Size Limit
Amenities
Gated, Maintenance, Pool, Security, Vehicle Restrictions
Interior
Built-in Features, Ceiling Fans(s), Crown Molding, Elevator, High Ceilings, In Wall Pest System, Open Floorplan, Pest Guard System, PrimaryBedroom Upstairs, Solid Surface Counters, Solid Wood Cabinets, Split Bedroom, Stone Counters, Thermostat, Walk-In Closet(s), Window Treatments
Maintenance Fee Includes
-
Governing Bodies
-
Construction
-
Security
Security Gate, Security Lights, Security System Leased, Smoke Detector(s)
Heating
Central, Electric
Garage/Carport
1
Dining Area
-
Exterior
-
Pet Restrictions
No
Parking
-
Application Fee
-
Water Access
-
Pool
No
Gated Community
-
Status
A
Listing Office
YOUR NEIGHBORHOOD REALTY ASSOC

Related Properties

Loading related properties, please wait...

The data relating to real estate for sale on this web site comes in part from various real estate boards and MLSs across the United States.

Information is deemed reliable but not guaranteed. Copyright, all rights reserved. The information being provided is for consumers' personal, non-commercial use and may not be used for any purpose other than to identify prospective properties consumers may be interested in purchasing. Use of search facilities of data on the site, other than a consumer looking to purchase real estate, is prohibited.

Listing Courtesy of: YOUR NEIGHBORHOOD REALTY ASSOC