$8,300,000

FOR SALE

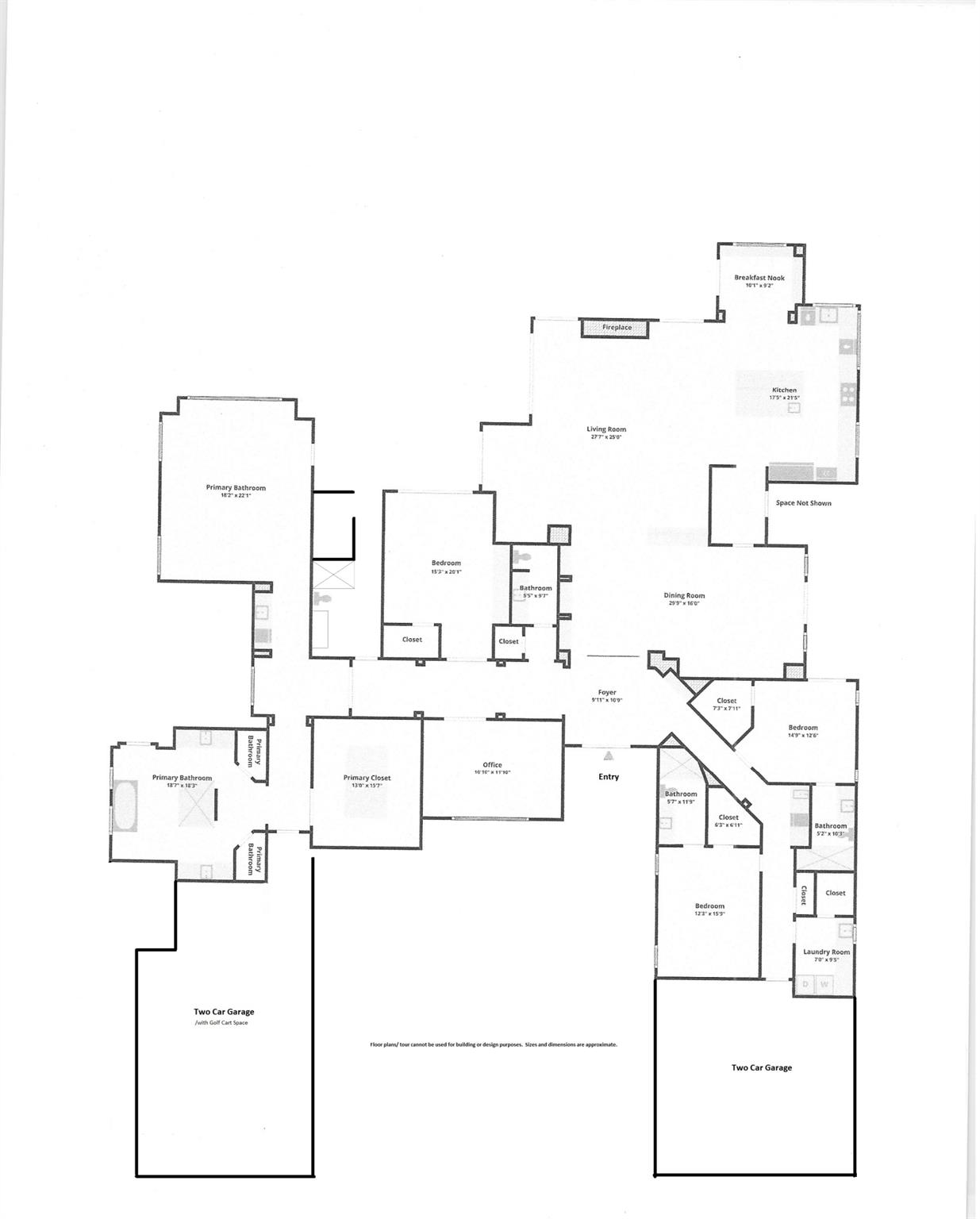
2783 Rhone Drive, Palm Beach Gardens, FL 33410

Palm Beach Gardens, Fl, 33410

MLS #R11096505

Subdivision: Frenchmans Creek Par B

Building: -

4 Beds

4/1 Baths

5039 sqft

$ 1,647.15 /sqft

Property Details

Welcome to waterfront living, in prestigious Frenchman's Creek. This exquisite 4-bedroom, 4.5-bath residence offers breathtaking water views, a private dock with boat lift, and direct access to the Intracoastal. Designed for both relaxation and entertainment, the outdoor oasis features a summer kitchen and a resort-style pool with spa, perfect for unwinding or hosting guests. Inside, the spacious chef's kitchen--complete with a butler's pantry and breakfast nook--offers a seamless blend of elegance and functionality. The grand living room, adorned with a decorative fireplace, wet bar, and floor-to-ceiling glass, invites natural light and showcases stunning vistas. 4-car + golf cart garage and unparalleled amenities, this home is a must-see for those seeking sophistication and comfort

Property Features

-

Property Type
Single Family
HOA Fee/Monthly
Monthly
HOPA
No
Membership Fees
-
Appliances
Dryer,Dishwasher,ElectricRange,ElectricWaterHeater,IceMaker,Microwave,Refrigerator,WaterHeater,Washer
Restrictions
-
Furnished
Unfurnished
Flooring
Other
No. of Floor
-
Terms Considered
Cash,Conventional
Year Built
2017
Cooling
CentralAir,CeilingFans
Pets Allowed
Yes
Amenities
BeachRights,Clubhouse,FitnessCenter,GolfCourse,Pickleball,Pool,Restaurant,TennisCourts,Trails
Interior
WetBar,BuiltInFeatures,BreakfastArea,Bathtub,DiningArea,SeparateFormalDiningRoom,DualSinks,EatInKitchen,Pantry,SplitBedrooms,SoakingTub,SeparateShower,WalkInClosets
Maintenance Fee Includes
CommonAreas,CableTv,Security
Governing Bodies
-
Construction
Block
Security
SecuritySystemOwned,GatedWithGuard,GatedCommunity,SmokeDetectors,SecurityGuard
Heating
Central,Zoned
Garage/Carport
4
Dining Area
-
Exterior
OutdoorKitchen,OutdoorLivingArea
Pet Restrictions
No
Parking
Attached,Garage,GolfCartGarage,GarageDoorOpener
Application Fee
-
Water Access
-
Pool
Yes
Gated Community
-
Status
A
Listing Office
The Keyes Company PBG

Related Properties

Loading related properties, please wait...

The data relating to real estate for sale on this web site comes in part from various real estate boards and MLSs across the United States.

Information is deemed reliable but not guaranteed. Copyright, all rights reserved. The information being provided is for consumers' personal, non-commercial use and may not be used for any purpose other than to identify prospective properties consumers may be interested in purchasing. Use of search facilities of data on the site, other than a consumer looking to purchase real estate, is prohibited.

Listing Courtesy of: The Keyes Company PBG