$296,659

FOR SALE

2782 Armadale Dr

Mount Dora, Fl, 32757

MLS #O6375649

Subdivision: Southloch

Building: -

2 Beds

2/1 Baths

1087 sqft

$ 272.92 /sqft

Property Details

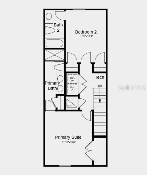
Under Construction. What's Special: Popular Plan | Gray Cabinets | Covered Lanai | Close to Amenities | West Facing Lot - New Construction - March Completion! Built by Taylor Morrison, America's Most Trusted Home Builder. Welcome to the Iris at 2782 Armadale Drive in Southloch! This thoughtfully designed townhome style condominium offers an easy, open layout filled with natural light. The kitchen flows seamlessly into the dining area and great room, creating a comfortable space for everyday living. A large rear lanai extends your living area outdoors, and a convenient powder room completes the main floor. Upstairs, a flexible tech space sits between the secondary bedroom, with its own private bath, and the spacious primary suite, which features an en-suite bath and a large closet. The upstairs laundry room adds simple, day-to-day convenience. Southloch is a gated community designed for connection, comfort, and a vibrant lifestyle. Ideally located off US-441 near SR-429, SR-44, and SR-19, youre just minutes from historic downtown Mount Doracelebrated for its walkable streets, charming shops, lakeside views, and a full calendar of festivals that earn it the nickname Festival City. Planned amenities include a pool and cabana, peaceful hammocks, cornhole, a Nature Play Space, and a National Wildlife Federation Monarch Butterfly Garden, offering inviting places to relax and unwind. Golf enthusiasts will appreciate the nearby Country Club of Mount Dora with its championship 18-hole course. A future golf cart trail and sidewalk network will connect Southloch to the Country Club and a Publix-anchored shopping center, making errands and recreation simple and enjoyable. You can spend weekends exploring local boutiques, dining downtown, or heading out on Lake Dora for boating and fishing across the scenic Harris Chain of Lakes. Additional Highlights Include: GE refrigerator, washer and dryer, and whole house blinds. Photos are for representative purposes only. MLS#O6375649

Property Features

-

Property Type
Condo/Co-Op/Villa/Townhouse
HOA Fee/Monthly
-
HOPA
No
Membership Fees
-
Appliances
Dishwasher, Disposal, Dryer, Electric Water Heater, Microwave, Range, Refrigerator, Washer
Restrictions
-
Furnished
Unfurnished
Flooring
Carpet, Ceramic Tile
No. of Floor
-
Terms Considered
Cash, Conventional, FHA, Other, VA Loan
Year Built
2026
Cooling
Central Air
Pets Allowed
Cats OK, Dogs OK, Yes
Amenities
Fence Restrictions, Gated, Maintenance, Playground, Pool, Wheelchair Access
Interior
Open Floorplan, Window Treatments
Maintenance Fee Includes
-
Governing Bodies
-
Construction
Block
Security
Gated Community
Heating
Central
Garage/Carport
-
Dining Area
-
Exterior
Sliding Doors
Pet Restrictions
No
Parking
Assigned
Application Fee
-
Water Access
-
Pool
No
Gated Community
-
Status
A
Listing Office
TAYLOR MORRISON REALTY OF FLORIDA INC

Related Properties

Loading related properties, please wait...

The data relating to real estate for sale on this web site comes in part from various real estate boards and MLSs across the United States.

Information is deemed reliable but not guaranteed. Copyright, all rights reserved. The information being provided is for consumers' personal, non-commercial use and may not be used for any purpose other than to identify prospective properties consumers may be interested in purchasing. Use of search facilities of data on the site, other than a consumer looking to purchase real estate, is prohibited.

Listing Courtesy of: TAYLOR MORRISON REALTY OF FLORIDA INC