$1,449,900

FOR SALE

2428 W Silverpoint Way

Bluffdale, Ut, 84065

MLS #2123117

Subdivision: Tate

Building: -

6 Beds

3/- Baths

5420 sqft

$ 267.51 /sqft

Property Details

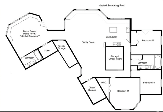
AmazingBluffdale horse property with barn PLUS an extra 1.5 acres which can be leased for only $600 per year! The list of updated items on this property is extensive- New roof and solar panels (52) with a Generac back up battery (14KW) installed in 2021. Electrical service upgraded from 100 amp to 200 amp in the house and barn. New furnace and AC units installed in thehouse and barn in 2021. New tankless water heater and water softener. New pool liner, pump, filter and cover. Remodeled main kitchen with quartzite counter tops and beautiful slate tiling. and new kitchen downstairs. Updated master bathroom that is handicap accessible with walk in shower spa and garden tub. New carport- hay cover by the barn. RV 50 amp plug and water connection by the barn.There is a fenced coral area behind the barn that also connects to the extra 1.5 acres. Unmetered secondary water. LOTS of new fencing around the property. New barn roof. The down stairs has 3 ground level walk out doors and lots of light. Could easily be a Mother in Law apartment with 3 bedrooms.

Property Features

-

Property Type
Single Family
HOA Fee/Monthly
-
HOPA
No
Membership Fees
-
Appliances
Refrigerator,Water Softener Owned
Restrictions
-
Furnished
-
Flooring
Carpet,Tile
No. of Floor
-
Terms Considered
Cash,Conventional
Year Built
1997
Cooling
Central Air
Pets Allowed
-
Amenities
-
Interior
Bath: Sep. Tub/Shower,Closet: Walk-In,Den/Office,Disposal,French Doors,Kitchen: Second,Kitchen: Updated,Mother-in-Law Apt.,Oven: Double,Vaulted Ceilings
Maintenance Fee Includes
-
Governing Bodies
-
Construction
Brick
Security
-
Heating
Gas: Central
Garage/Carport
3
Dining Area
-
Exterior
Balcony,Barn,Basement Entrance,Bay Box Windows,Double Pane Windows,Horse Property,Out Buildings,Walkout
Pet Restrictions
No
Parking
-
Application Fee
-
Water Access
Culinary,Irrigation,Secondary
Pool
Yes
Gated Community
-
Status
A
Listing Office
Intermountain Properties

Related Properties

Loading related properties, please wait...

The data relating to real estate for sale on this web site comes in part from various real estate boards and MLSs across the United States.

Information is deemed reliable but not guaranteed. Copyright, all rights reserved. The information being provided is for consumers' personal, non-commercial use and may not be used for any purpose other than to identify prospective properties consumers may be interested in purchasing. Use of search facilities of data on the site, other than a consumer looking to purchase real estate, is prohibited.

Listing Courtesy of: Intermountain Properties