$149,900

FOR SALE

222 Defuniak Loop, Lillian AL 36549

Lillian, Al, 36549

MLS #376157

Subdivision: Spanish Cove

Building: -

2 Beds

2/- Baths

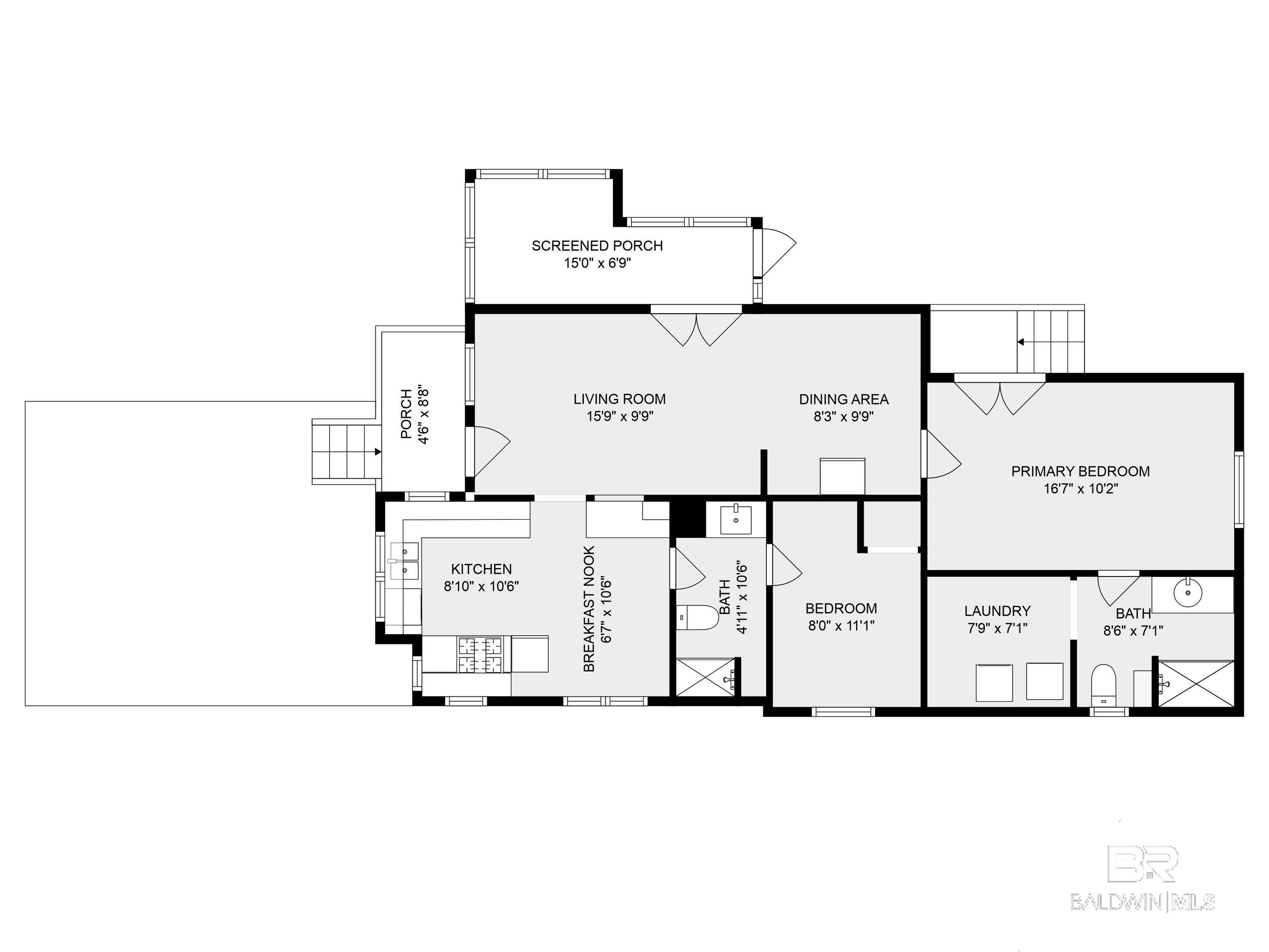
985 sqft

$ 152.18 /sqft

Property Details

Beautifully remodeled home in Spanish Cove, Lillian, Al. This is an RV that has been built on to and includes a spacious kitchen, large living room and two bedrooms. The home comes furnished and is move in ready. Metal roof, new AC, on demand hot water heater, beautiful granite throughout, walk in closet, and a subway tile back splash in the kitchen. Low cost utilities. Sleep number bed in the guest bedroom. Fenced back yard and pea gravel in the front yard for minimal upkeep. Nice, peaceful screened side porch for relaxing. The home also comes with a storage shed in the back yard. The Spanish Cove community boasts a year round pool, fishing pier on Perdido Bay, shuffleboard, basketball, and tennis courts, playground, public showers, laundry facilities, 2 clubhouses and 24-hour security. Activities include exercise classes, art classes, jam sessions, potluck dinners, bingo, Bunco, card games, garden club, nature trails, book club, crafts, line dancing, and monthly bus excursions to the Biloxi casinos. Lillian is a great location with easy access to everything. 15 minutes to Perdido key, 15 miles to downtown Pensacola, 15 miles to NAS Pensacola, 15 miles to Foley, 20 miles to Orange Beach, and 25 miles to Gulf Shores. All information to be verified by buyer or buyers agent. Buyer to verify all information during due diligence.

Property Features

-

Property Type
Single Family
HOA Fee/Monthly
Monthly
HOPA
-
Membership Fees
-
Appliances
Dryer, Electric Range, Refrigerator, Washer
Restrictions
-
Furnished
-
Flooring
Luxury Vinyl Plank
No. of Floor
-
Terms Considered
-
Year Built
2000
Cooling
Central Electric (Cool)
Pets Allowed
Allowed
Amenities
-
Interior
-
Maintenance Fee Includes
-
Governing Bodies
-
Construction
Vinyl Siding
Security
Security Service
Heating
Electric, Central
Garage/Carport
-
Dining Area
None
Exterior
-
Pet Restrictions
Allowed
Parking
None
Application Fee
-
Water Access
Perdido Bay Water
Pool
Yes
Gated Community
-
Status
A
Listing Office
Warner Realty

Related Properties

Loading related properties, please wait...

The data relating to real estate for sale on this web site comes in part from various real estate boards and MLSs across the United States.

Information is deemed reliable but not guaranteed. Copyright, all rights reserved. The information being provided is for consumers' personal, non-commercial use and may not be used for any purpose other than to identify prospective properties consumers may be interested in purchasing. Use of search facilities of data on the site, other than a consumer looking to purchase real estate, is prohibited.

Listing Courtesy of: Warner Realty