$3,095

FOR SALE

22-36 Bloomfield Avenue 303

Paterson, Nj, 07503

MLS #24032433

Subdivision: -

Building: -

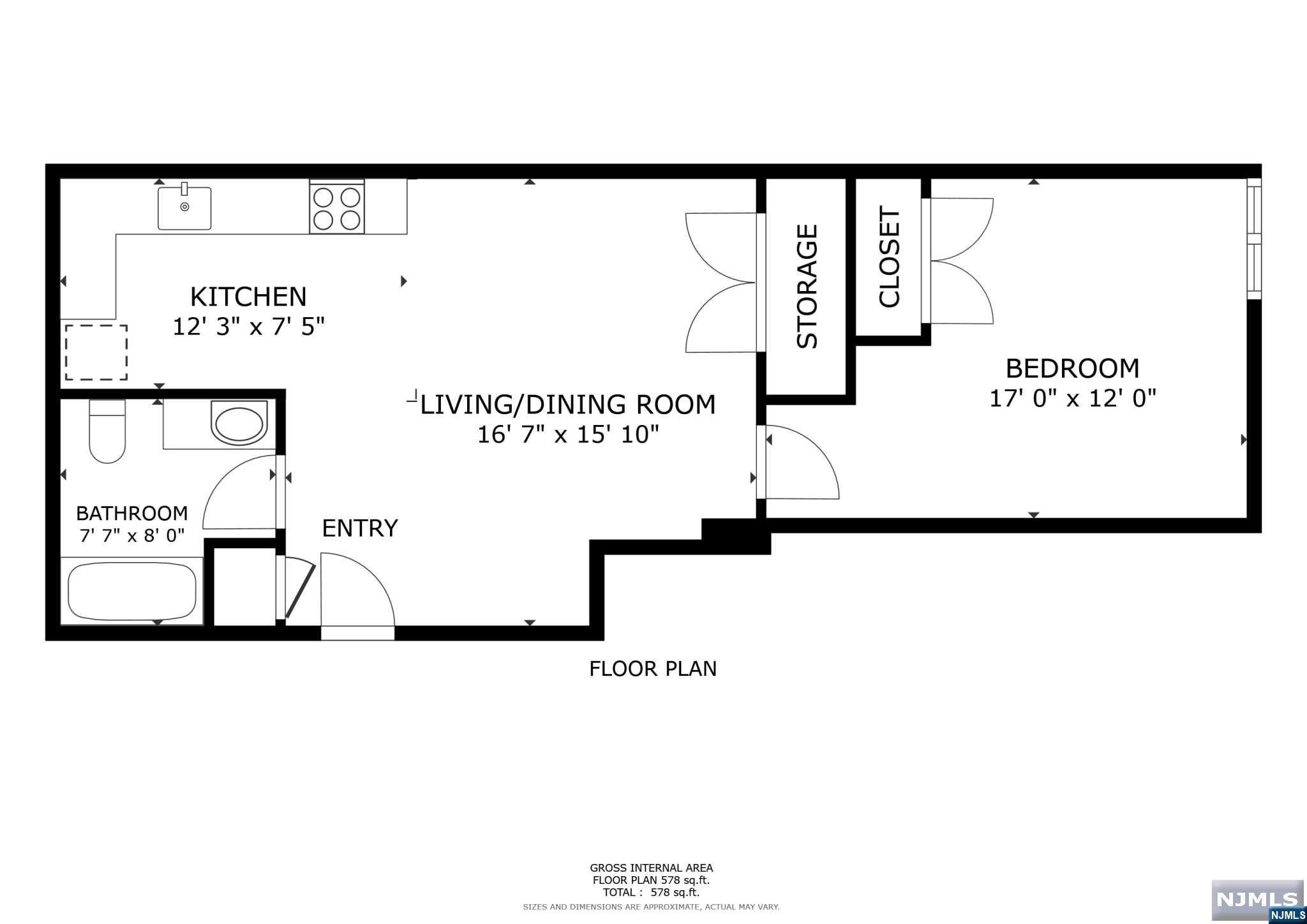
2 Beds

1/- Baths

- sqft

$ - /sqft

Property Details

Welcome to South Paterson's newest development, Skyline Square! This stunning 56 unit rental building is the epitome of unparalleled living, combining design, comfort, experience, and convenience. This building offers a variety of 1- and 2-bedroom rentals, each designed with your lifestyle in mind. Skyline Square is a pristine and premier community where you can thrive and create lasting memories. Inside these luxurious units you will find oversized floorplans, functionality, and private balconies that offer breathtaking views of the surrounding area. Enjoy your morning coffee on your balcony or unwind after a long day at work on the rooftop terrace with unobstructed views of NYC. Units include a dedicated internet connection and smart home and doorman technology. In addition to the top of the line interiors, roof top terrace and grilling A state-of-the-art fitness center, in building daycare, community room

Property Features

-

Property Type
Condo/Co-Op/Villa/Townhouse
HOA Fee/Monthly
-
HOPA
-
Membership Fees
-
Appliances
-
Restrictions
-
Furnished
-
Flooring
-
No. of Floor
-
Terms Considered
-
Year Built
-
Cooling
-
Pets Allowed
No
Amenities
24hr Sec,Common Area,Elevator,Exercise Rm,Gated Community,Health Clb,On Site Mgn,Recycling
Interior
-
Maintenance Fee Includes
-
Governing Bodies
-
Construction
-
Security
-
Heating
Electric,Gas,Hot Air
Garage/Carport
1
Dining Area
-
Exterior
-
Pet Restrictions
No
Parking
Gar Opener,Indoor Sp Cov.,Electric Vehicle Charging
Application Fee
-
Water Access
-
Pool
No
Gated Community
-
Status
A
Listing Office
Nest Seekers New Jersey - Summit

Related Properties

Loading related properties, please wait...

The data relating to real estate for sale on this web site comes in part from various real estate boards and MLSs across the United States.

Information is deemed reliable but not guaranteed. Copyright, all rights reserved. The information being provided is for consumers' personal, non-commercial use and may not be used for any purpose other than to identify prospective properties consumers may be interested in purchasing. Use of search facilities of data on the site, other than a consumer looking to purchase real estate, is prohibited.

Listing Courtesy of: Nest Seekers New Jersey - Summit