$1,375,000

FOR SALE

2192 Louisa Dr

Belleair Beach, Fl, 33786

MLS #TB8448082

Subdivision: Bellevue Estates Island

Building: -

3 Beds

2/- Baths

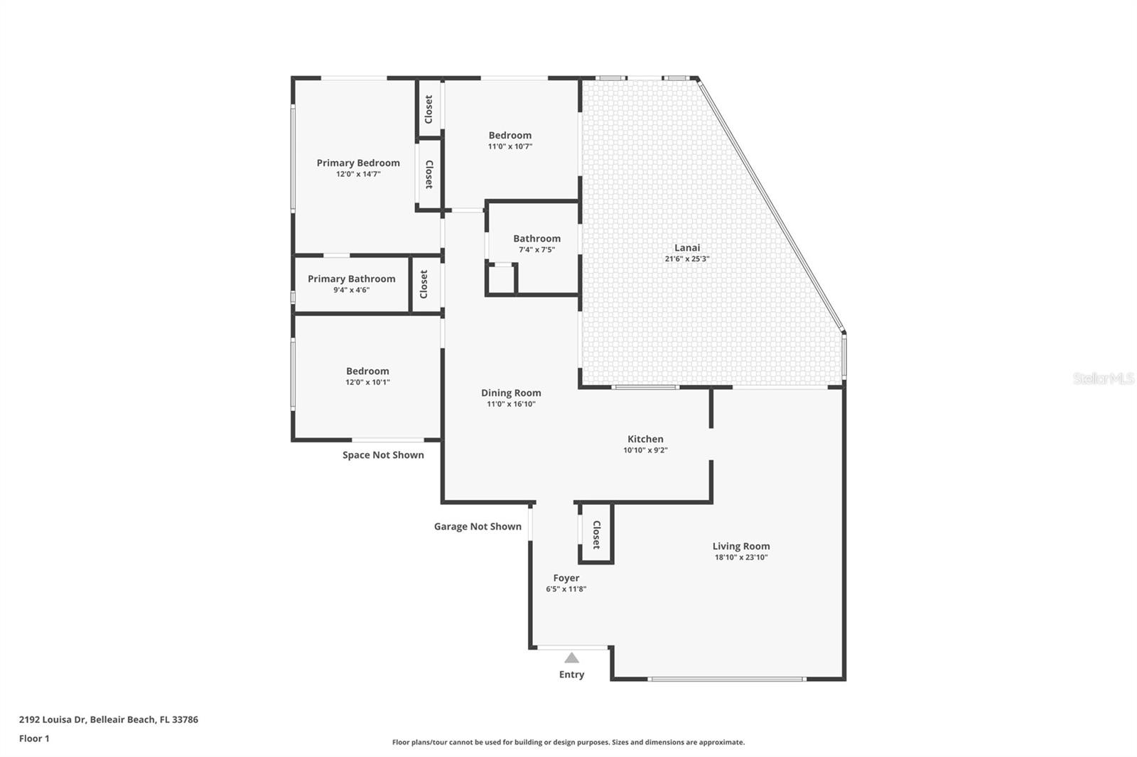
1465 sqft

$ 938.57 /sqft

Property Details

Waterfront canal-front pool home in Belleair Beach with private dock and direct boating access. Updated 3BR/2BA block home with granite kitchen, polished terrazzo floors, 2018 roof, attached garage, and no HOA. Move-in ready coastal living. Located in highly desirable Belleair Beach, this 3-bedroom, 2-bath waterfront home offers approximately 1,465 sq ft of bright, open living space with a split-bedroom layout and an attached garage. Inside, the home was renovated in 20242025 with thoughtful coastal finishes. Original terrazzo floors have been professionally diamond-cut and polished, giving the home a clean, modern feel while preserving its classic Florida character. The kitchen features granite countertops, stainless steel appliances, and an open flow to the living and dining areas ideal for entertaining. Both bathrooms have been updated with fresh finishes and fixtures. Step outside to your private backyard oasis with a waterfront canal lot with private dock with water & electric, In-ground pool, large covered patio for outdoor dining and entertaining, wide water views and sunset skies.Whether you enjoy boating, paddleboarding, fishing, or simply relaxing poolside, this home offers true indoor-outdoor Florida living.No HOA. No rental restrictions typical of condo living. Just a single-family waterfront home in one of Pinellas Countys most sought-after beach communities. Conveniently located minutes from Clearwater Beach, Pelican Golf Club, Belleair Country Club, and approximately 45 minutes to Tampa International Airport. Waterfront homes with private docks in Belleair Beach are limited. If youve been waiting for the right canal-front opportunity with a pool this is it. Schedule your private showing today.

Property Features

-

Property Type
Single Family
HOA Fee/Monthly
-
HOPA
No
Membership Fees
-
Appliances
Built-In Oven, Convection Oven, Cooktop, Dishwasher, Disposal, Electric Water Heater, Microwave, Range Hood, Refrigerator, Water Softener
Restrictions
-
Furnished
Unfurnished
Flooring
Terrazzo
No. of Floor
-
Terms Considered
Cash, Conventional
Year Built
1963
Cooling
Central Air
Pets Allowed
Yes
Amenities
-
Interior
Ceiling Fans(s), Living Room/Dining Room Combo, Primary Bedroom Main Floor, Solid Wood Cabinets, Stone Counters, Thermostat
Maintenance Fee Includes
-
Governing Bodies
-
Construction
Block, Brick, Concrete, Stucco
Security
-
Heating
Central, Electric
Garage/Carport
2
Dining Area
-
Exterior
French Doors, Private Mailbox, Sliding Doors
Pet Restrictions
No
Parking
-
Application Fee
-
Water Access
1
Pool
1
Gated Community
-
Status
A
Listing Office
BHHS FLORIDA PROPERTIES GROUP

Related Properties

Loading related properties, please wait...

The data relating to real estate for sale on this web site comes in part from various real estate boards and MLSs across the United States.

Information is deemed reliable but not guaranteed. Copyright, all rights reserved. The information being provided is for consumers' personal, non-commercial use and may not be used for any purpose other than to identify prospective properties consumers may be interested in purchasing. Use of search facilities of data on the site, other than a consumer looking to purchase real estate, is prohibited.

Listing Courtesy of: BHHS FLORIDA PROPERTIES GROUP