$290,000

FOR SALE

21760 NW 3rd St

Pembroke Pines, Fl, 33029

MLS #A11905330

Subdivision: Heritage City Sec 2

Building: -

3 Beds

2/- Baths

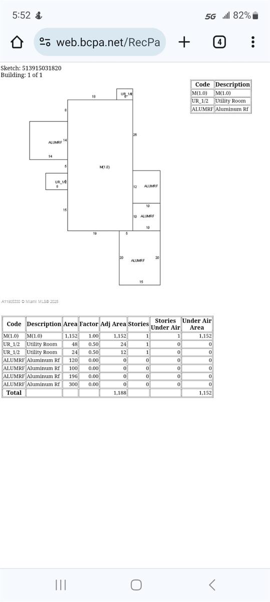
1188 sqft

$ 244.11 /sqft

Property Details

Tranquility sanctuary rare to find. Double wide Manufactured home with 3/2 plus an additional room that can be used at den a/o four bed a/o office a/o buyer choice/desire/need. Good news YOU OWN THE LAND. Refreshed updated renovation: new floor, kitchen, baths, appliances, etc. Freshly exterior paint. No rental restriction. Shed that is used as laundry room, but with space for your tool. Community include club house, gym lake, pool, tennis/basketball courts, play ground. Low HOA ($103/m)

Property Features

-

Property Type
Single Family
HOA Fee/Monthly
Monthly
HOPA
No
Membership Fees
-
Appliances
Dryer,ElectricRange,ElectricWaterHeater,Microwave,Refrigerator,Washer
Restrictions
-
Furnished
-
Flooring
Vinyl
No. of Floor
-
Terms Considered
Cash,Conventional
Year Built
1982
Cooling
CentralAir
Pets Allowed
DogsOk,Yes
Amenities
-
Interior
BedroomOnMainLevel,FirstFloorEntry
Maintenance Fee Includes
-
Governing Bodies
-
Construction
Manufactured
Security
-
Heating
Central
Garage/Carport
-
Dining Area
-
Exterior
None
Pet Restrictions
No
Parking
Covered
Application Fee
-
Water Access
-
Pool
No
Gated Community
-
Status
A
Listing Office
OD Realty Group Corp

Related Properties

Loading related properties, please wait...

The data relating to real estate for sale on this web site comes in part from various real estate boards and MLSs across the United States.

Information is deemed reliable but not guaranteed. Copyright, all rights reserved. The information being provided is for consumers' personal, non-commercial use and may not be used for any purpose other than to identify prospective properties consumers may be interested in purchasing. Use of search facilities of data on the site, other than a consumer looking to purchase real estate, is prohibited.

Listing Courtesy of: OD Realty Group Corp