$595,000

FOR SALE

216 Summit Avenue

Center City, Mn, 55012

MLS #7035683

Subdivision: -

Building: -

4 Beds

1/1 Baths

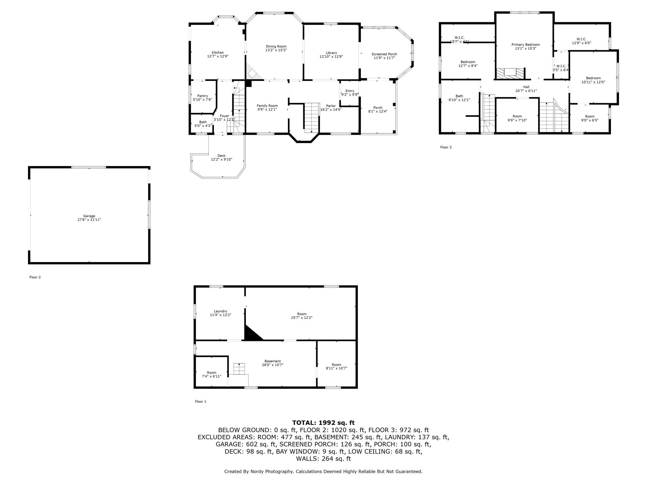
2200 sqft

$ 270.45 /sqft

Property Details

Experience exceptional sunset views from this distinguished Victorian residence situated on North Center Lake. Located on Historic Summit Avenue, the property offers convenient access to local restaurants, parks, and heritage sites in the center of Americas Little Sweden.The architect thoughtfully designed this home to highlight lake vistas with an inviting front porch, a sunroom, a side deck, and a landscaped, park-like yard. Notable architectural features include a butlers pantry, a secondary staircase, solid oak pocket doors, nine-foot ceilings, a parlor, the grand central staircase, a clawfoot bathtub, decorative fireplaces, and the lake room featuring a window seat for optimal viewing.The property has been exceptionally maintained, with more than $125,000 invested in recent upgrades. Improvements include a new roof, leaf guard gutters, modernized windows, siding, shutters, window well covers, renovated side and back porches, a new garage door, NEST system, storm doors, sidewalks, appliances, and shower. Additionally, the humidifier, central air conditioning, and furnace were replaced about 2012.This property includes a 2nd property with 50' on North Center Lake which is known for its exceptional beauty and good fishing. It is part of the Chisago Chain of Lakes with over 5,000 acres. There is a city dock with easy access to restaurants for boaters.This residence presents a rare opportunity to experience refined lakefront living, as enjoyed by the current owners for more than five decades.

Property Features

-

Property Type
Single Family
HOA Fee/Monthly
-
HOPA
-
Membership Fees
-
Appliances
Dishwasher, Dryer, Water Filtration System, Microwave, Range, Refrigerator, Washer
Restrictions
-
Furnished
-
Flooring
-
No. of Floor
-
Terms Considered
-
Year Built
1904
Cooling
Central Air
Pets Allowed
-
Amenities
-
Interior
-
Maintenance Fee Includes
-
Governing Bodies
-
Construction
-
Security
-
Heating
Forced Air
Garage/Carport
2
Dining Area
-
Exterior
-
Pet Restrictions
No
Parking
Detached Garage, Garage Door Opener
Application Fee
-
Water Access
-
Pool
No
Gated Community
-
Status
A
Listing Office
Coldwell Banker Realty

Related Properties

Loading related properties, please wait...

The data relating to real estate for sale on this web site comes in part from various real estate boards and MLSs across the United States.

Information is deemed reliable but not guaranteed. Copyright, all rights reserved. The information being provided is for consumers' personal, non-commercial use and may not be used for any purpose other than to identify prospective properties consumers may be interested in purchasing. Use of search facilities of data on the site, other than a consumer looking to purchase real estate, is prohibited.

Listing Courtesy of: Coldwell Banker Realty