$585,000

FOR SALE

201 Woodsbrooke Drive

Putnam Valley, Ny, 10541

MLS #935068

Subdivision: -

Building: -

3 Beds

3/- Baths

2836 sqft

$ 206.28 /sqft

Property Details

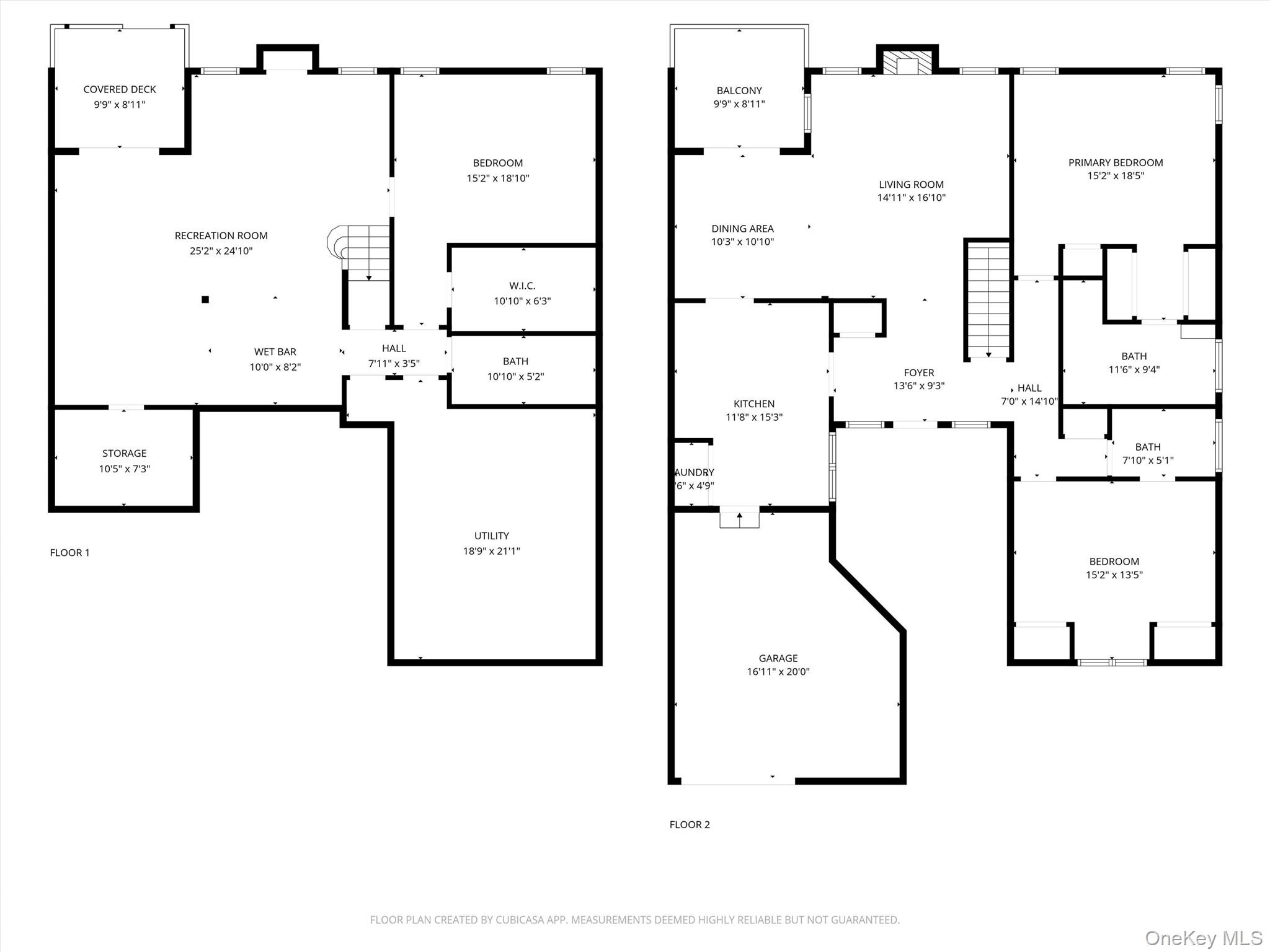
Tucked into one of Mahopacs most tightly held communities, this corner ranch-style home offers something rarely found here: substantially more living space than the surrounding units. While attached, this residence lives nothing like a typical townhouse with a layout and square footage that set it apart immediately.The main level delivers true one-level living, featuring a spacious primary suite, central air, cozy fireplace, attached garage, and a private deck ideal for morning coffee or quiet evenings. The kitchen and baths have been well maintained and offer an excellent opportunity to update at your own pace.What truly elevates this home is the fully finished walkout lower level, which nearly doubles the usable living space compared to most homes in the community. In addition to a full bath and ample storage, the lower level includes a large bonus room that functions comfortably as a third bedroom, complete with an oversized walk-in closet, plus a separate office area perfect for remote work, guests, or extended living.With the flexibility that similar nearby sales simply dont offer, this home provides room to spread out, host, and live comfortably without compromise. Located in a peaceful, well-kept HOA of just 32 homes, opportunities like this are rare. Mahopac schools, an exceptional price per square foot, and a layout that truly stands apart make this a compelling option for buyers looking beyond the ordinary.

Property Features

-

Property Type
Single Family
HOA Fee/Monthly
-
HOPA
No
Membership Fees
-
Appliances
Dishwasher, Dryer, Electric Range, Microwave, Refrigerator, Stainless Steel Appliance(s), Washer
Restrictions
-
Furnished
-
Flooring
Carpet
No. of Floor
-
Terms Considered
-
Year Built
1986
Cooling
Central Air
Pets Allowed
-
Amenities
-
Interior
First Floor Bedroom, First Floor Full Bath, Primary Bathroom, Recessed Lighting, Walk-In Closet(s)
Maintenance Fee Includes
-
Governing Bodies
-
Construction
Frame
Security
-
Heating
Forced Air
Garage/Carport
1
Dining Area
-
Exterior
-
Pet Restrictions
No
Parking
Driveway, Garage
Application Fee
-
Water Access
-
Pool
No
Gated Community
-
Status
A
Listing Office
Compass Greater NY LLC

Related Properties

Loading related properties, please wait...

The data relating to real estate for sale on this web site comes in part from various real estate boards and MLSs across the United States.

Information is deemed reliable but not guaranteed. Copyright, all rights reserved. The information being provided is for consumers' personal, non-commercial use and may not be used for any purpose other than to identify prospective properties consumers may be interested in purchasing. Use of search facilities of data on the site, other than a consumer looking to purchase real estate, is prohibited.

Listing Courtesy of: Compass Greater NY LLC