$499,000

FOR SALE

201 Linden Avenue

Red Hook, Ny, 12571

MLS #946705

Subdivision: -

Building: -

4 Beds

1/1 Baths

1362 sqft

$ 366.37 /sqft

Property Details

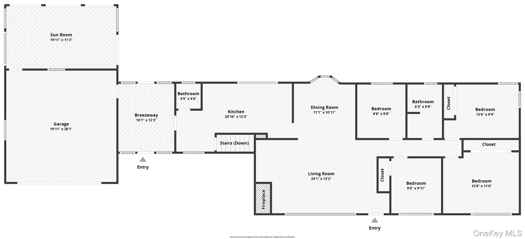
Once in a generation does a home like this come available. Meticulously cared for by the previous family; this Red Hook gem features a fabulous floor plan. One level easy living and a full finished basement with room for so much expansion. Walk in through the breezeway with blue stone floors and walls of windows, perfect for a grand entry way or lounge area to have a sunlight morning cup of coffee and relax. Two car attached garage with room for storage or work shop off one way of the room and enter into the home off the other side to the country Kitchen with handsome details and large windows overlooking the lovely, resort level backyard, half Bath powder room off kitchen perfect for guests and convenience. Dining room and large living room off kitchen for convenience and hosting, large bay windows off both floods the house with light. Wood burning fireplace in living room with custom wall of built ins waiting for all your treasures. Down the hall there are 4 great sized bedrooms and a large full bathroom. Home features original, pristine hard wood floors throughout. On Lower Level there is a full finished Basement with room for an Office, Play area, Family gatherings or Gym. The Manicured Yard is fenced, perfect for kids, pets and privacy features a Belgium block patio and custom-built grill that will elevate all your summer gatherings!  Cool off in the Gunite pool and relax in the Florida Room neatly tucked in the back of the home. A desirable Corner lot with loads of room for gardening or outdoor activities. The very best convenient location, within a 2-minute drive or 10-minute bike ride to Red Hook Village for all the best local, farm fresh dining and boutique shopping. 2 minutes to Rec Park and hiking at the Winakee Land Preserve of over 2000 acres. Located in the Red Hook Schools with Bard College moments away. A true treasure, waiting for the next owner to make it their own!

Property Features

-

Property Type
Single Family
HOA Fee/Monthly
-
HOPA
No
Membership Fees
-
Appliances
Dryer, Oven, Refrigerator, Washer
Restrictions
-
Furnished
-
Flooring
Wood
No. of Floor
-
Terms Considered
-
Year Built
1956
Cooling
Central Air
Pets Allowed
-
Amenities
-
Interior
First Floor Bedroom, First Floor Full Bath
Maintenance Fee Includes
-
Governing Bodies
-
Construction
Vinyl Siding, Wood Siding
Security
-
Heating
Baseboard
Garage/Carport
2
Dining Area
-
Exterior
Gas Grill, Rain Gutters
Pet Restrictions
No
Parking
Garage
Application Fee
-
Water Access
-
Pool
Yes
Gated Community
-
Status
A
Listing Office
Mondello Upstate Properties

Related Properties

Loading related properties, please wait...

The data relating to real estate for sale on this web site comes in part from various real estate boards and MLSs across the United States.

Information is deemed reliable but not guaranteed. Copyright, all rights reserved. The information being provided is for consumers' personal, non-commercial use and may not be used for any purpose other than to identify prospective properties consumers may be interested in purchasing. Use of search facilities of data on the site, other than a consumer looking to purchase real estate, is prohibited.

Listing Courtesy of: Mondello Upstate Properties