$899,000

FOR SALE

18175 Scenic Highway 98 # 15, Fairhope AL 36532

Fairhope, Al, 36532

MLS #392283

Subdivision: Point Clear Landing

Building: 18175 Scenic Highway 98

4 Beds

4/1 Baths

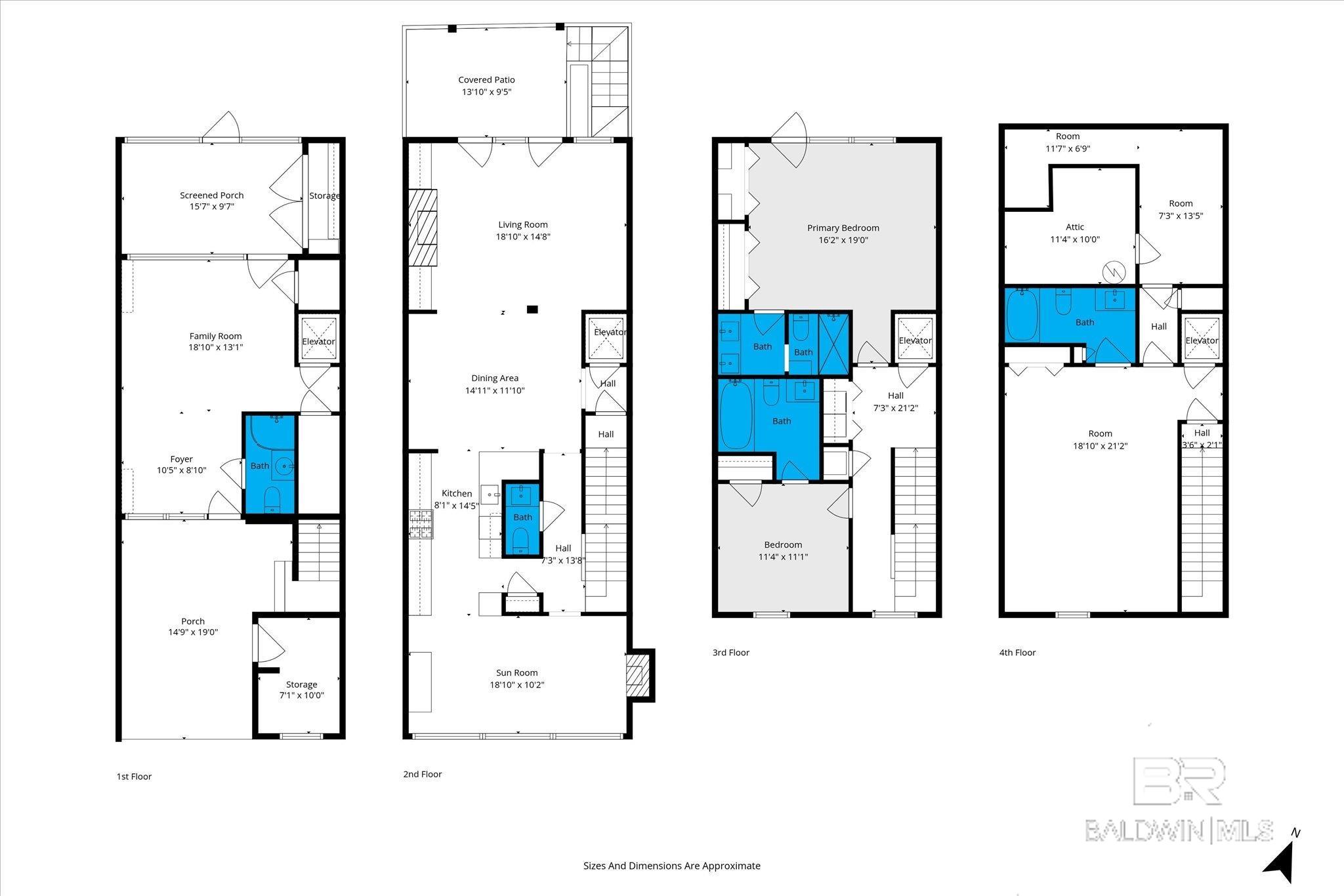
2665 sqft

$ 337.34 /sqft

Property Details

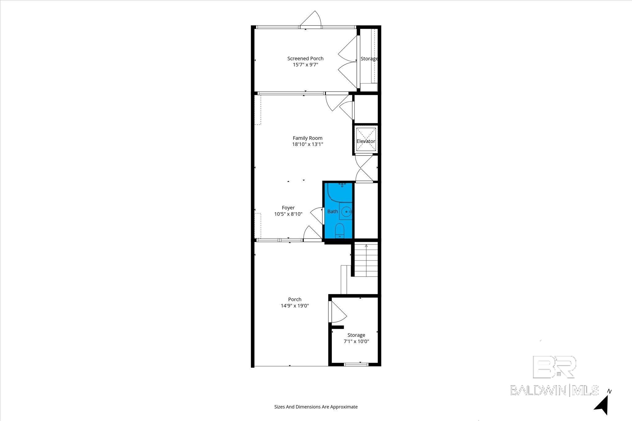
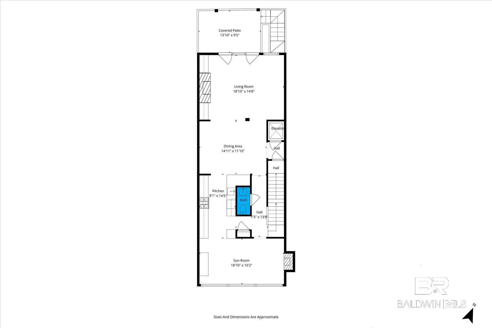
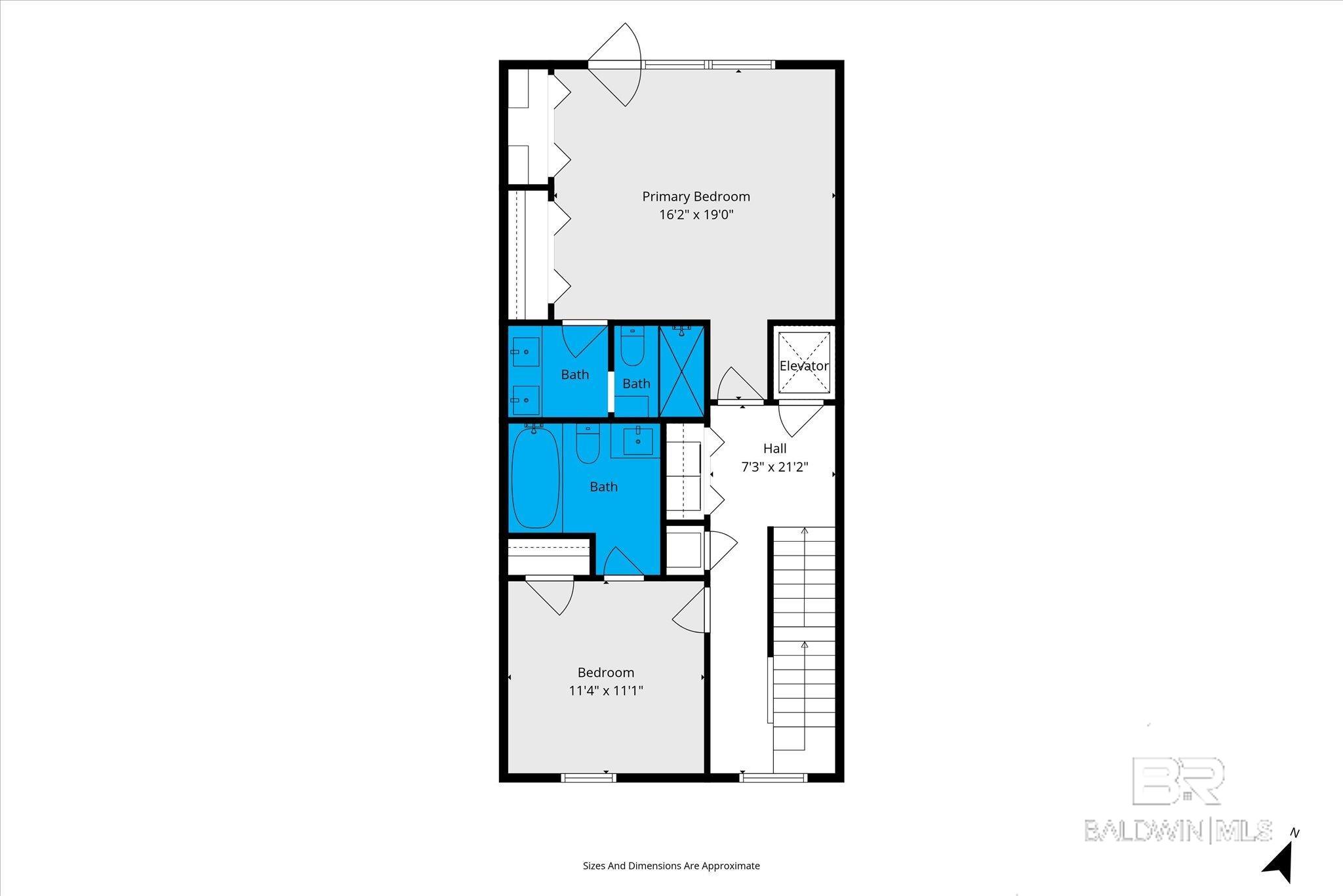
Experience the ultimate bayfront lifestyle with private balconies, an enlarged and oversized boat slip, breathtaking water views, and refreshing bay breezes. This stunning four-story condo, complete with a new elevator (March 2021), offers generous space for both entertaining and relaxation, along with private en-suite bedrooms for guests. The sun porch has been beautifully updated, featuring new windows and a brand-new AC/heat control board and electrical system (2024). The gorgeous gourmet kitchen was recently remodeled in 2022. Additional updates include a remodeled half bath, a fully renovated primary bath, and a newly added full bath in the basement. Throughout the home you will find many recent updates including newly replaced windows in the glass doors, fresh insulation, resurfaced hardwood floors and new stair carpeting. The wood-burning fireplace was rebuilt with a gas starter, a tankless water heater was installed and the skylights were also replaced in 2022. For peace of mind, the whole-house generator is professionally serviced every six months, with a new battery installed in Fall 2024. The basement heat and air system was also replaced in 2018 (case in 2024). Outdoor living is just as spectacular, featuring a double-size pier boat dock, covered parking, and multiple inviting spaces to soak in the stunning bayfront viewsincluding the private balcony off the primary suite. Enjoy low-maintenance, luxury living just minutes from the Marriott Grand Hotel, fine dining, championship golf courses, tennis courts, and scenic bike trails. This one-of-a-kind bayfront retreat is ready to welcome you home! Buyer to verify all information during due diligence.

Property Features

-

Property Type
Condo/Co-Op/Villa/Townhouse
HOA Fee/Monthly
Monthly
HOPA
-
Membership Fees
-
Appliances
Dishwasher, Disposal, Convection Oven, Microwave, Refrigerator w/Ice Maker, Cooktop, Tankless Water Heater
Restrictions
-
Furnished
-
Flooring
Tile, Vinyl, Wood, Other Floors-See Remarks
No. of Floor
-
Terms Considered
-
Year Built
1984
Cooling
Central Electric (Cool), Ceiling Fan(s)
Pets Allowed
Allowed
Amenities
-
Interior
Bonus Room, Attached Sep Living Suite, Sun Room, Ceiling Fan(s), Elevator, En-Suite, Storage
Maintenance Fee Includes
Association Management, Common Area Insurance, Custodial Services, Recreational Facilities, Taxes-Common Area
Governing Bodies
-
Construction
Hardboard, Block, Wood Frame
Security
Smoke Detector(s), Carbon Monoxide Detector(s)
Heating
Central
Garage/Carport
-
Dining Area
Lvg/Dng Combo
Exterior
Storage, Termite Contract
Pet Restrictions
Allowed
Parking
Covered
Application Fee
-
Water Access
Public
Pool
No
Gated Community
-
Status
A
Listing Office
Ashurst Niemeyer LLC

Related Properties

Loading related properties, please wait...

The data relating to real estate for sale on this web site comes in part from various real estate boards and MLSs across the United States.

Information is deemed reliable but not guaranteed. Copyright, all rights reserved. The information being provided is for consumers' personal, non-commercial use and may not be used for any purpose other than to identify prospective properties consumers may be interested in purchasing. Use of search facilities of data on the site, other than a consumer looking to purchase real estate, is prohibited.

Listing Courtesy of: Ashurst Niemeyer LLC