$244,589

FOR SALE

1627 Sundiata Street, Piedmont SC 29673

Piedmont, Sc, 29673

MLS #1584158

Subdivision: Woodmont Springs

Building: -

4 Beds

3/- Baths

2178 sqft

$ 112.30 /sqft

Property Details

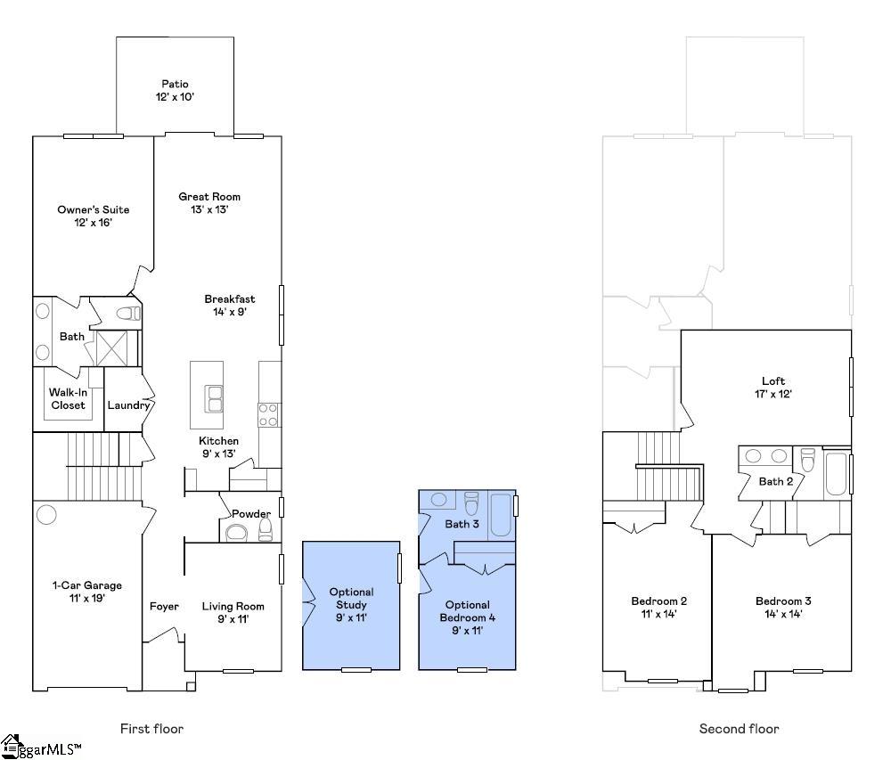
Welcome home to the beautiful Berkley. This home embodies sophistication and elegance. As you enter the home you will find a beautiful light-filled guest bedroom with en suite bathroom. The chef's kitchen features white and gray shaker style cabinets with a stunning quartz countertop, tile backsplash, and a 5-burner gas range with griddle. The kitchen is open to the breakfast room and large great room where you can enjoy hosting friends and family. The stunning primary suite features a spa-like en-suite with tiled shower, private water closet, and large walk-in closet. Upstairs offers an amazing loft space which is great for another family room, media room, or craft room...the possibilities are endless!! Plus, two more secondary bedrooms and a full bath and dual sinks. Woodmont Springs is a master-planned community offering new single-family and multi-family homes, located in Piedmont, SC. Nestled along the Saluda River, Piedmont is a charming southern area bringing tons of outdoor activities, parks and recreation within close reach. Go fishing, kayaking, whitewater rafting, camping and hiking at the Upper Saluda River. Nearby are Greenville Zoo and Piedmont Athletic Complex. 15 miles north is Greenville and in less than 30 miles is Greer for more shopping, dining and entertainment options.

Property Features

-

Property Type
Condo/Co-Op/Villa/Townhouse
HOA Fee/Monthly
Monthly
HOPA
-
Membership Fees
-
Appliances
Dishwasher, Disposal, Free-Standing Gas Range, Microwave, Electric Water Heater
Restrictions
-
Furnished
-
Flooring
Carpet, Luxury Vinyl
No. of Floor
-
Terms Considered
-
Year Built
-
Cooling
Central Air, Electric, Damper Controlled
Pets Allowed
Breed Restrictions
Amenities
-
Interior
High Ceilings, Ceiling Smooth, Open Floorplan, Walk-In Closet(s), Countertops – Quartz, Pantry
Maintenance Fee Includes
Common Area Ins., Maintenance Structure, Maintenance Grounds, Street Lights, Trash, Restrictive Covenants
Governing Bodies
-
Construction
Stone, Vinyl Siding
Security
Smoke Detector(s)
Heating
Forced Air, Natural Gas, Damper Controlled
Garage/Carport
1
Dining Area
-
Exterior
-
Pet Restrictions
Breed Restrictions
Parking
Attached, Concrete, Garage Door Opener, Driveway
Application Fee
-
Water Access
Public
Pool
No
Gated Community
-
Status
A
Listing Office
Lennar Carolinas LLC

Related Properties

Loading related properties, please wait...

The data relating to real estate for sale on this web site comes in part from various real estate boards and MLSs across the United States.

Information is deemed reliable but not guaranteed. Copyright, all rights reserved. The information being provided is for consumers' personal, non-commercial use and may not be used for any purpose other than to identify prospective properties consumers may be interested in purchasing. Use of search facilities of data on the site, other than a consumer looking to purchase real estate, is prohibited.

Listing Courtesy of: Lennar Carolinas LLC