$185,500

FOR SALE

148 Beechwood Dr #57

Safety Harbor, Fl, 34695

MLS #TB8488348

Subdivision: Briar Creek Mobile Home Community I Condo

Building: 148 Beechwood Drive

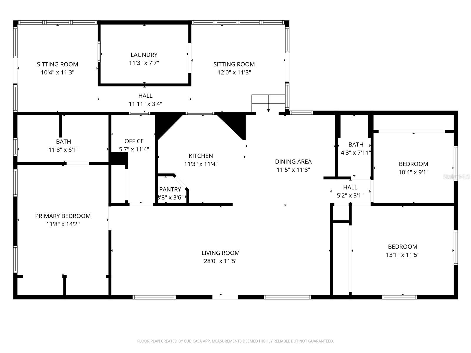
3 Beds

2/- Baths

1344 sqft

$ 138.02 /sqft

Property Details

Welcome home to Briar Creek in Safety Harbor! Rare THREE bedroom home in this land-owned, X flood zone, highly sought-after 55+, golf cart-friendly community, in North Pinellas County near Tampa Bay.Enjoy low monthly fees of just $235, including water, sewer, trash, lawn care, and access to the clubhouse with heated/cooled pool and spa, shuffleboard and lots of fun activities!This pristine, move-in ready home features a spacious open floor plan with luxury vinyl flooring throughoutno carpet. Neutral tones and decor create a bright, modern feel.The updated kitchen and two fully remodeled bathrooms afford stylish, functional living. The oversized primary suite includes dual closets with organizers and a beautifully updated en-suite bath with double sinks and designer finishes.Enjoy added privacy with no rear neighbors, located in a quiet non-pet area of the community (service pets allowed with approval). Briar Creek is known for its mature trees, scenic lakes, and friendly atmosphere, with access to walking and biking trails along Lake Tarpon Outfall Canal.Conveniently located just minutes from shopping, dining, medical facilities, and more, while still offering a peaceful, country-like setting.A rare opportunity in one of Safety Harbors most desirable 55+ communitiesschedule your showing today!

Property Features

-

Property Type
Single Family
HOA Fee/Monthly
-
HOPA
1
Membership Fees
-
Appliances
Dishwasher, Electric Water Heater, Range, Range Hood
Restrictions
-
Furnished
Negotiable
Flooring
Luxury Vinyl
No. of Floor
-
Terms Considered
Cash, Conventional
Year Built
1980
Cooling
Central Air
Pets Allowed
No
Amenities
Clubhouse, Shuffleboard Court
Interior
Living Room/Dining Room Combo, Primary Bedroom Main Floor, Split Bedroom
Maintenance Fee Includes
-
Governing Bodies
-
Construction
Metal Siding
Security
-
Heating
Central
Garage/Carport
-
Dining Area
-
Exterior
Other
Pet Restrictions
No
Parking
-
Application Fee
-
Water Access
-
Pool
Yes
Gated Community
-
Status
A
Listing Office
LPT REALTY LLC

Related Properties

Loading related properties, please wait...

The data relating to real estate for sale on this web site comes in part from various real estate boards and MLSs across the United States.

Information is deemed reliable but not guaranteed. Copyright, all rights reserved. The information being provided is for consumers' personal, non-commercial use and may not be used for any purpose other than to identify prospective properties consumers may be interested in purchasing. Use of search facilities of data on the site, other than a consumer looking to purchase real estate, is prohibited.

Listing Courtesy of: LPT REALTY LLC