$208,999

FOR SALE

1366 Cattleman Acres Drive, Inman SC 29349

Inman, Sc, 29349

MLS #1581415

Subdivision: The Maple

Building: -

3 Beds

2/1 Baths

7840.8 sqft

$ 26.66 /sqft

Property Details

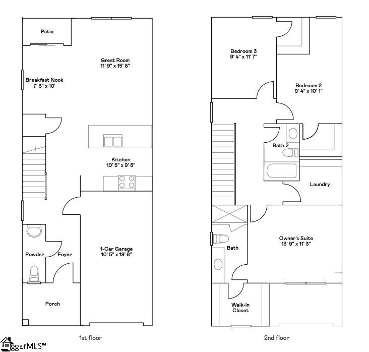
The Magnolia floorplan at The Maple in Inman, SC. We are thrilled to introduce you to the Magnolia floorplan, which boasts a generous 1405 square feet of living space. You will have a 2 car parking pad, and 1 car garage. As you step inside, you'll be greeted by an open-concept first floor featuring a spacious great room with vinyl flooring that seamlessly flows into your main kitchen and breakfast area. The kitchen is a chef's delight, complete with quartz countertops, a stylish tile backsplash, and modern stainless-steel appliances. Imagine spending tranquil afternoons on your back porch, which comes with vinyl privacy fences for that added sense of seclusion and peace. Heading upstairs, you'll discover a luxurious primary bedroom equipped with a dual vanity sink, a walk-in shower, and a spacious walk-in closet. Home also features a tankless water heater. The upper floor is also home to two additional bedrooms, a full bath, and a conveniently located laundry room, ensuring all your needs are met. It's the ideal home for making lasting memories with your loved ones. It's ideal for families seeking a peaceful neighborhood with convenient connections to Greenville and Spartanburg.

Property Features

-

Property Type
Condo/Co-Op/Villa/Townhouse
HOA Fee/Monthly
Monthly
HOPA
-
Membership Fees
-
Appliances
Dishwasher, Disposal, Free-Standing Gas Range, Microwave, Gas Water Heater
Restrictions
-
Furnished
-
Flooring
Carpet, Laminate
No. of Floor
-
Terms Considered
-
Year Built
2025
Cooling
Central Air
Pets Allowed
-
Amenities
-
Interior
Ceiling Smooth, Open Floorplan, Countertops-Other, Countertops – Quartz, Pantry
Maintenance Fee Includes
None
Governing Bodies
-
Construction
Vinyl Siding
Security
Smoke Detector(s)
Heating
Forced Air, Natural Gas
Garage/Carport
2
Dining Area
-
Exterior
-
Pet Restrictions
-
Parking
Attached, Paved, Garage Door Opener
Application Fee
-
Water Access
Public
Pool
No
Gated Community
-
Status
A
Listing Office
Lennar Carolinas LLC

Related Properties

Loading related properties, please wait...

The data relating to real estate for sale on this web site comes in part from various real estate boards and MLSs across the United States.

Information is deemed reliable but not guaranteed. Copyright, all rights reserved. The information being provided is for consumers' personal, non-commercial use and may not be used for any purpose other than to identify prospective properties consumers may be interested in purchasing. Use of search facilities of data on the site, other than a consumer looking to purchase real estate, is prohibited.

Listing Courtesy of: Lennar Carolinas LLC