$104,900

FOR SALE

1215 5th Avenue

Moorhead, Mn, 56560

MLS #7034759

Subdivision: North College Place

Building: -

4 Beds

1/1 Baths

1864 sqft

$ 56.28 /sqft

Property Details

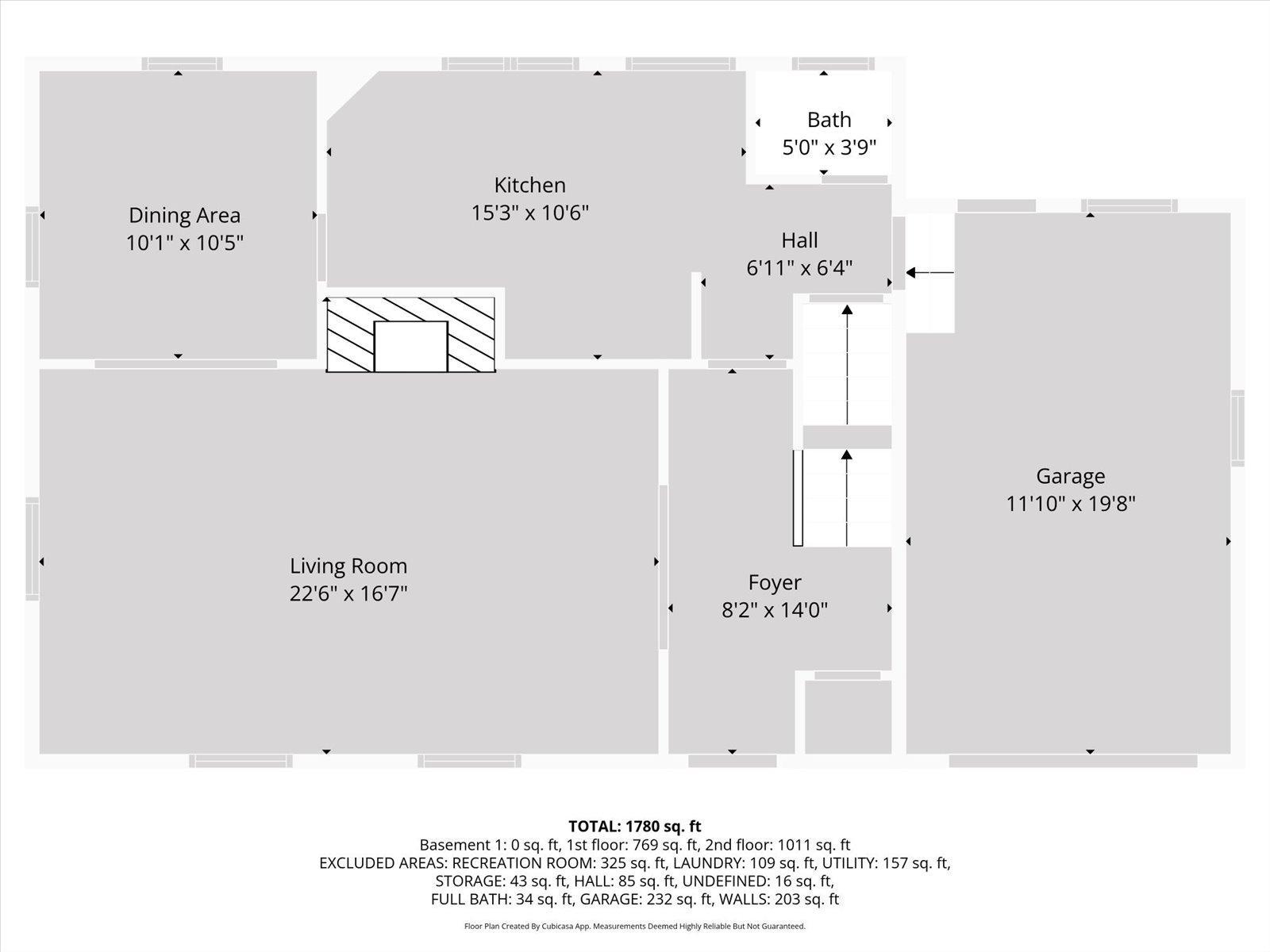
Two-story single-family home offering approximately 1,864 finished square feet with four bedrooms and three bathrooms. The main level includes a foyer, living room, dining area, kitchen, and bathroom, with bedrooms located on the upper level. Additional space is provided by the lower level with recreation, laundry, utility, and storage areas. Features include hardwood flooring, two wood-burning fireplaces, central air conditioning, natural gas forced-air heating, and city water and sewer. The property includes an attached single-stall garage, patio area, and fenced yard, and is situated on a residential lot within the city of Moorhead.

Property Features

-

Property Type
Single Family
HOA Fee/Monthly
-
HOPA
-
Membership Fees
-
Appliances
-
Restrictions
-
Furnished
-
Flooring
-
No. of Floor
-
Terms Considered
-
Year Built
1939
Cooling
Central Air
Pets Allowed
-
Amenities
-
Interior
-
Maintenance Fee Includes
-
Governing Bodies
-
Construction
-
Security
-
Heating
Forced Air
Garage/Carport
1
Dining Area
-
Exterior
-
Pet Restrictions
No
Parking
Attached Garage
Application Fee
-
Water Access
-
Pool
No
Gated Community
-
Status
A
Listing Office
Gallery of Homes

Related Properties

Loading related properties, please wait...

The data relating to real estate for sale on this web site comes in part from various real estate boards and MLSs across the United States.

Information is deemed reliable but not guaranteed. Copyright, all rights reserved. The information being provided is for consumers' personal, non-commercial use and may not be used for any purpose other than to identify prospective properties consumers may be interested in purchasing. Use of search facilities of data on the site, other than a consumer looking to purchase real estate, is prohibited.

Listing Courtesy of: Gallery of Homes