$179,900

FOR SALE

11020 Irvington Blb Highway, Irvington AL 36544

Irvington, Al, 36544

MLS #387431

Subdivision: Metes & Bounds

Building: -

4 Beds

2/- Baths

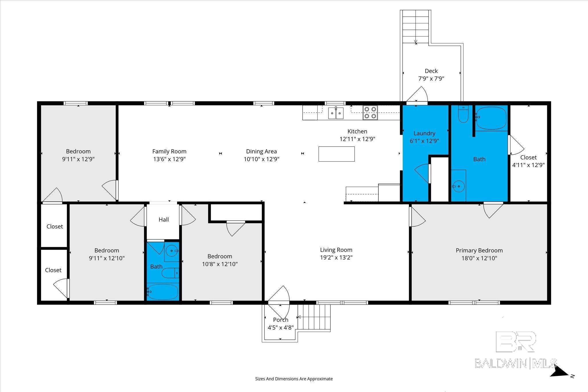
1904 sqft

$ 94.49 /sqft

Property Details

Welcome home to 11020 Irvington Bayou-La-Batre Hwy! This beautifully updated 2023 manufactured home offers 1,904 sq. ft. of modern comfort on 1.142 acres of peaceful country living. Step inside to discover brand-new flooring, fresh paint, and new appliances throughout. Ready for you to move right in! Enjoy morning coffee or evening sunsets from your new front and back decks, surrounded by nature and open space. The property includes a new septic system, water meter, and power pole, offering worry-free living for years to come. A structural engineering report and survey are already completed for your convenience. Experience the perfect blend of privacy, space, and modern living? Just a short drive to shopping, schools, and the coast. Don't miss this opportunity to make this turnkey property your new home! Buyer to verify all information during due diligence.

Property Features

-

Property Type
Single Family
HOA Fee/Monthly
-
HOPA
-
Membership Fees
-
Appliances
Dishwasher, Electric Range, Refrigerator
Restrictions
-
Furnished
Unfurnished
Flooring
Carpet, Vinyl
No. of Floor
-
Terms Considered
Other-See Remarks
Year Built
2023
Cooling
-
Pets Allowed
-
Amenities
-
Interior
Family Room, Ceiling Fan(s)
Maintenance Fee Includes
-
Governing Bodies
-
Construction
Vinyl Siding, Block
Security
Smoke Detector(s)
Heating
Electric, Central
Garage/Carport
-
Dining Area
-
Exterior
-
Pet Restrictions
-
Parking
See Remarks
Application Fee
-
Water Access
-
Pool
No
Gated Community
-
Status
A
Listing Office
Berkshire Hathaway HomeService

Related Properties

Loading related properties, please wait...

The data relating to real estate for sale on this web site comes in part from various real estate boards and MLSs across the United States.

Information is deemed reliable but not guaranteed. Copyright, all rights reserved. The information being provided is for consumers' personal, non-commercial use and may not be used for any purpose other than to identify prospective properties consumers may be interested in purchasing. Use of search facilities of data on the site, other than a consumer looking to purchase real estate, is prohibited.

Listing Courtesy of: Berkshire Hathaway HomeService