$439,900

FOR SALE

10703 S Ridge Drive, Semmes AL 36575

Semmes, Al, 36575

MLS #382037

Subdivision: Metes and Bounds

Building: -

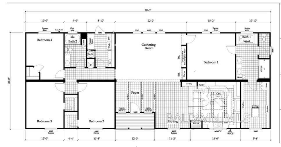
4 Beds

2/- Baths

2280 sqft

$ 192.94 /sqft

Property Details

This private homestead has everything you need to live out your country dreams with the comfort and closeness of in town conveniences. Tucked back off a quiet, yet convenient, road with 14+/- acres. this fully operating horse farm offers freedom, function and all the space you need to live your best rural life- with multiple access points for ease and convenience. Whether you're an avid rider, horse lover, or just want room to spread out and soak in the peace, this property delivers. Property boasts endless possibilities having no restrictive covenants on use of land! Bring your dreams and vision and watch it come to life! At the heart of the property sits your 2023 Free State Home by Winston Homes that feels anything but modular. With over 2,200 square feet, this 4 bedroom 2 bathroom home is thoughtfully designed with crown molding, a split bedroom plan and a large utility room featuring built in cabinetry and a utility sink. The kitchen is spacious and open with a large island, plenty of counter space and stainless steel appliances (plus a window to enjoy your peaceful haven!) Primary bedroom features a spacious ensuite with a large soaking tub, separate shower and a walk in closet you could live in! Yes, your closet has a closet island! Every detail of this home was designed to make your daily life more enjoyable and a sense of freedom at every turn. But what really makes this place special is the land. From the fenced pasture with ample grass for livestock with water and shelter to the barn featuring a large stall and separate paddock area with extra space for tack and hay- everything is already in place for horse lovers, homesteaders or anyone craving that quiet, self-sufficient lifestyle! Whether you are building a legacy, starting fresh or just want room to graze and breathe- this property offers all the peace and purpose you have been looking for! Bring the animals, bring the dreams- this is more than a home, it is a true lifestyle! Buyer to verify all in

Property Features

-

Property Type
Single Family
HOA Fee/Monthly
-
HOPA
-
Membership Fees
-
Appliances
Dishwasher, Microwave, Electric Range, Refrigerator w/Ice Maker
Restrictions
-
Furnished
-
Flooring
Carpet, Vinyl
No. of Floor
-
Terms Considered
-
Year Built
2023
Cooling
-
Pets Allowed
-
Amenities
-
Interior
Breakfast Bar, Ceiling Fan(s), En-Suite, Internet, Split Bedroom Plan
Maintenance Fee Includes
-
Governing Bodies
-
Construction
Vinyl Siding
Security
Smoke Detector(s), Carbon Monoxide Detector(s)
Heating
Electric, Central
Garage/Carport
-
Dining Area
Dining/Kitchen Combo
Exterior
-
Pet Restrictions
-
Parking
Three or More Vehicles
Application Fee
-
Water Access
Public
Pool
No
Gated Community
Fenced, Partial
Status
A
Listing Office
Wellhouse Real Estate West LL

Related Properties

Loading related properties, please wait...

The data relating to real estate for sale on this web site comes in part from various real estate boards and MLSs across the United States.

Information is deemed reliable but not guaranteed. Copyright, all rights reserved. The information being provided is for consumers' personal, non-commercial use and may not be used for any purpose other than to identify prospective properties consumers may be interested in purchasing. Use of search facilities of data on the site, other than a consumer looking to purchase real estate, is prohibited.

Listing Courtesy of: Wellhouse Real Estate West LL