$4,650

FOR SALE

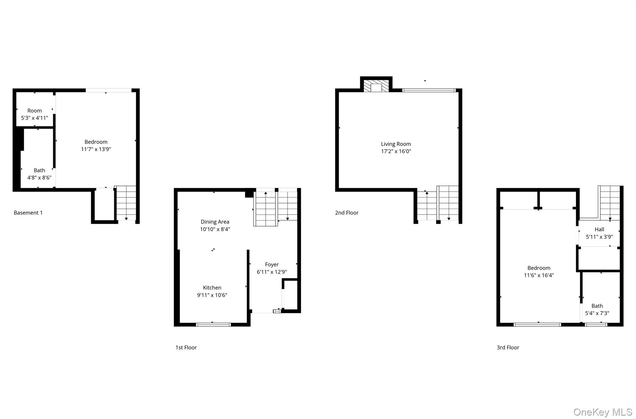
10 Bayberry Lane

Rye Town, Ny, 10573

MLS #955054

Subdivision: The Arbors

Building: -

2 Beds

2/- Baths

1210 sqft

$ 3.84 /sqft

Property Details

Sun-drenched and beautifully renovated Maplewood model 2-bedroom, 2-bath townhome located in the highly sought-after Arbors community of Rye Brook. This thoughtfully designed residence offers an ideal layout that maximizes both space and natural light throughout.The renovated kitchen features stainless steel appliances, quartz countertops, a tile backsplash, and a bump-out island perfect for serving and entertaining, opening seamlessly to the main living areas. Just a few steps up, the formal living room showcases cathedral ceilings, custom built-in bookshelves, a skylight, and a stunning wood-burning fireplacecreating the perfect setting for cozy winter evenings.The spacious primary bedroom includes a renovated en-suite bathroom, generous closet space, and conveniently located full-size laundry just outside the bedroom. The lower level offers versatile living space ideal for a second family room, home office, or additional bedroom, along with a second renovated full bathroom. Sliding doors lead to a private backyard overlooking serene green spaceperfect for morning coffee, entertaining, or summer BBQs.Residents enjoy a low-maintenance lifestyle with access to the Arbors clubhouse, pool, fitness center, tennis and paddle courts, and playground. Ideally located near schools, shops, highways, and trains, and just minutes from Greenwich. Assigned one-car detached parking located close to the unit. Pet-friendly with additional storagethis exceptional rental truly has it all.

Property Features

-

Property Type
Rental Homes
HOA Fee/Monthly
-
HOPA
No
Membership Fees
-
Appliances
Dishwasher, Dryer, Microwave, Oven, Refrigerator, Stainless Steel Appliance(s), Washer
Restrictions
-
Furnished
Unfurnished
Flooring
Hardwood
No. of Floor
-
Terms Considered
-
Year Built
1979
Cooling
Central Air
Pets Allowed
Size Limit
Amenities
Clubhouse, Landscaping, Maintenance Grounds, Park, Parking, Playground, Snow Removal, Tennis Court(s), Trash
Interior
Built-in Features, Eat-in Kitchen, Entrance Foyer, Formal Dining
Maintenance Fee Includes
-
Governing Bodies
-
Construction
Frame, Wood Siding
Security
-
Heating
Hot Water, Oil
Garage/Carport
-
Dining Area
-
Exterior
Playground, Private Entrance, Tennis Court(s)
Pet Restrictions
No
Parking
Assigned
Application Fee
-
Water Access
-
Pool
No
Gated Community
-
Status
A
Listing Office
Howard Hanna Rand Realty

Related Properties

Loading related properties, please wait...

The data relating to real estate for sale on this web site comes in part from various real estate boards and MLSs across the United States.

Information is deemed reliable but not guaranteed. Copyright, all rights reserved. The information being provided is for consumers' personal, non-commercial use and may not be used for any purpose other than to identify prospective properties consumers may be interested in purchasing. Use of search facilities of data on the site, other than a consumer looking to purchase real estate, is prohibited.

Listing Courtesy of: Howard Hanna Rand Realty